Горный институт (проектное название "Большой проспект")
Модератор: Nomernoy
-
Чау-чау
- Сообщения: 2589
- Зарегистрирован: 26 ноя 2011, 19:20
- Станция метро: Шкиперская
Re: Горный институт (проектное название "Большой проспект")
Завершились работы по откопке котлована, сейчас занимаются укреплением основания и ограждающей периметр стены в грунте будущего вестибюля
https://vk.com/podzemnik_spb
-
Valenyin
- Сообщения: 43
- Зарегистрирован: 22 июл 2022, 10:31
- Станция метро: Площадь А. Невского-2
Re: Горный институт (проектное название "Большой проспект")
Впечатляет !!!
- W0LF
- Сообщения: 751
- Зарегистрирован: 09 ноя 2019, 21:50
- Станция метро: Рыбацкое
-
geda
- Сообщения: 40
- Зарегистрирован: 14 мар 2008, 13:07
Re: Горный институт (проектное название "Большой проспект")
Круто! Выглядит как корабль пришельцев из фильма "Чужой" ( Ассоциация такая)
- в40
- Профессионал

- Сообщения: 14772
- Зарегистрирован: 05 фев 2009, 19:46
- Станция метро: Проспект Большевиков
- Откуда: Дачное
Re: Горный институт (проектное название "Большой проспект")
Опять, что ли, дорфлекс используют в качестве гидроизоляции?
О=О=О=О=О=О=О=О=О=О=О=О=О=О=О=О=О=О=О
- koropet
- Сообщения: 186
- Зарегистрирован: 01 май 2012, 18:40
- Станция метро: Электросила
- Откуда: Санкт-Петербург
Re: Горный институт (проектное название "Большой проспект")
Теперь это по-другому называется Koniflex. Впрочем отличий никаких.
- в40
- Профессионал

- Сообщения: 14772
- Зарегистрирован: 05 фев 2009, 19:46
- Станция метро: Проспект Большевиков
- Откуда: Дачное
Re: Горный институт (проектное название "Большой проспект")
Значит протечки неизбежны.
О=О=О=О=О=О=О=О=О=О=О=О=О=О=О=О=О=О=О
- W0LF
- Сообщения: 751
- Зарегистрирован: 09 ноя 2019, 21:50
- Станция метро: Рыбацкое
- GelezinisVilkas
- Сообщения: 3561
- Зарегистрирован: 15 май 2015, 12:19
- Станция метро: Дунайская
-
Адмирал
- Сообщения: 2246
- Зарегистрирован: 07 окт 2014, 21:16
- Станция метро: Юго-Западная
- Откуда: Санкт-Петербург
Re: Горный институт (проектное название "Большой проспект")
Мощно))) ждём аналогичных отзывов по Театральной и другим станциям
- Ignat
- Сообщения: 431
- Зарегистрирован: 28 окт 2010, 02:29
- last_fm: Ta6ypeTKo
- Станция метро: Большеохтинская
- Контактная информация:
Re: Горный институт (проектное название "Большой проспект")
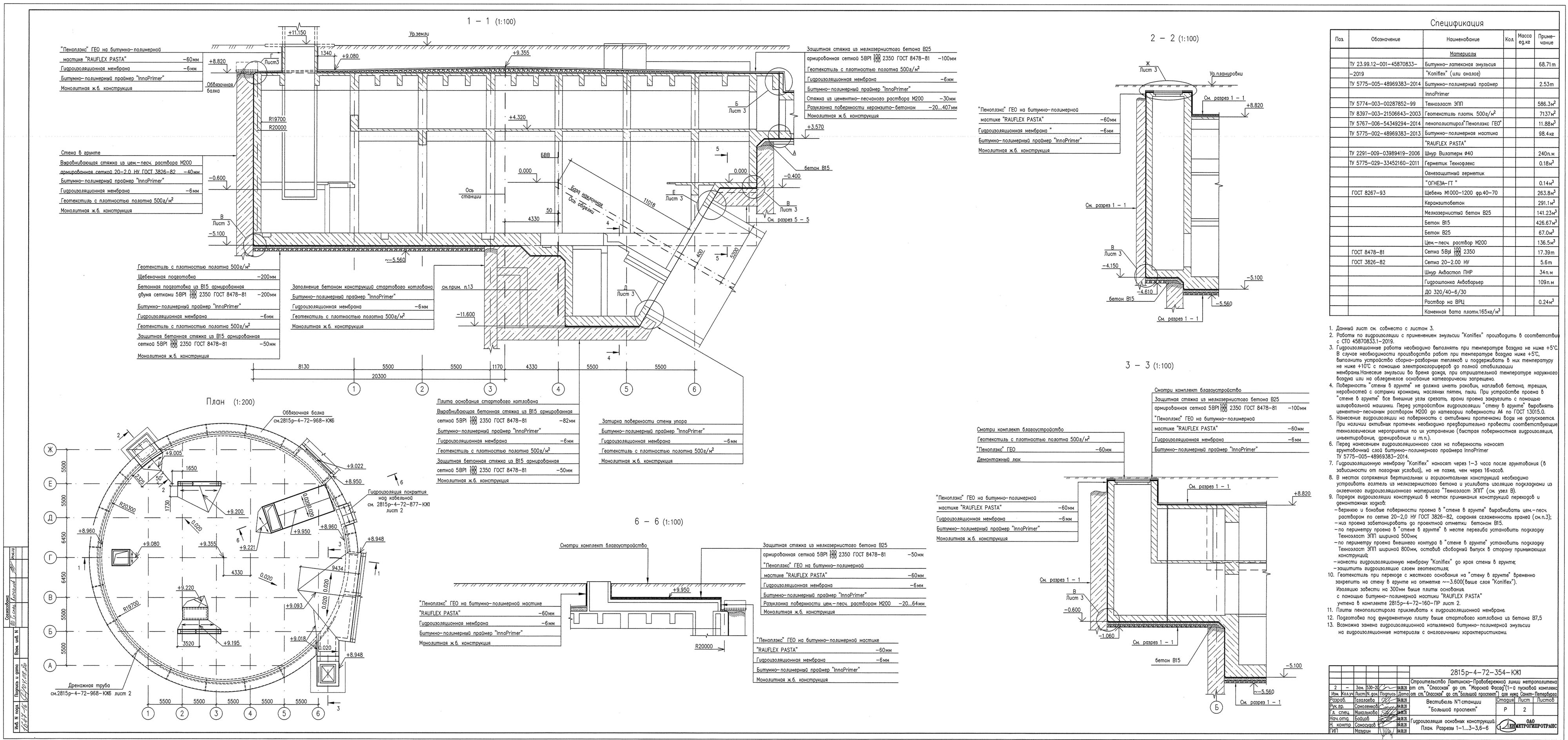
Дополню к вопросу о гидроизоляции вестибюля:
-
Zoso
- Сообщения: 53
- Зарегистрирован: 03 дек 2008, 02:42
- Станция метро: Проспект Ветеранов
Re: Горный институт (проектное название "Большой проспект")
С Нечто не перепутали? Там как раз тарелка во льдах похожа.https://avatars.dzeninfra.ru/get-zen_do ... scale_1200
-
Чау-чау
- Сообщения: 2589
- Зарегистрирован: 26 ноя 2011, 19:20
- Станция метро: Шкиперская
- W0LF
- Сообщения: 751
- Зарегистрирован: 09 ноя 2019, 21:50
- Станция метро: Рыбацкое
Re: Горный институт (проектное название "Большой проспект")
Чау-чау лает - корован идёт.
-
Мишель
- Сообщения: 82
- Зарегистрирован: 14 дек 2008, 10:42
- Станция метро: Комендантский Проспект