Каменка (Зоопарк)
Модератор: Nomernoy
- ArtTrapeza
- Сообщения: 833
- Зарегистрирован: 30 дек 2006, 11:56
- Станция метро: Проспект Просвещения
Re: Планерная (Зоопарк)
Утащено с «Проектов Петербурга». Там — из «Телеграма».
- TheSeaWind
- Сообщения: 340
- Зарегистрирован: 28 июн 2022, 14:52
- Станция метро: Балтийская Жемчужина
- Откуда: Улица Маршала Захарова
Re: Планерная (Зоопарк)
На сайте госзакупок снова продлили подачу заявок до 06.07.2022, а ранее первая дата была 21.06.2022. Надеюсь что начнут монтаж щита "Надежда" этим летом. https://zakupki.gov.ru/epz/order/notice ... d=14182558
Последний раз редактировалось TheSeaWind 28 июн 2022, 15:39, всего редактировалось 1 раз.
Федеральное финансирование Петербургскому метрополитену!
- TheSeaWind
- Сообщения: 340
- Зарегистрирован: 28 июн 2022, 14:52
- Станция метро: Балтийская Жемчужина
- Откуда: Улица Маршала Захарова
Re: Планерная (Зоопарк)
Первый подготовительные этап получил положительное заключение и соответственно на госзакупках уже есть заявка на подключение шахты 462 электроснабжением
https://egrz.ru/organisation/reestr/det ... 43529-2022
https://zakupki.gov.ru/epz/order/notice ... d=14196098
https://egrz.ru/organisation/reestr/det ... 43529-2022
https://zakupki.gov.ru/epz/order/notice ... d=14196098
Федеральное финансирование Петербургскому метрополитену!
- KarlUlrich
- Сообщения: 104
- Зарегистрирован: 27 июн 2022, 10:16
- Станция метро: Площадь Восстания
Re: Планерная (Зоопарк)
ArtTrapeza писал(а): ↑28 июн 2022, 10:26 Утащено с «Проектов Петербурга». Там — из «Телеграма».
45733.jpg
45783.jpg
черно-серая станция , черно коричнево серый стеклянный павильон, гении из лмгт заслуживают премии
-
Мишель
- Сообщения: 82
- Зарегистрирован: 14 дек 2008, 10:42
- Станция метро: Комендантский Проспект
Re: Планерная (Зоопарк)
Быстрее бы открыли, на Комендантском нагрузка в час пик поменьше будет.
- в40
- Профессионал

- Сообщения: 14816
- Зарегистрирован: 05 фев 2009, 19:46
- Станция метро: Проспект Большевиков
- Откуда: Дачное
- TheSeaWind
- Сообщения: 340
- Зарегистрирован: 28 июн 2022, 14:52
- Станция метро: Балтийская Жемчужина
- Откуда: Улица Маршала Захарова
Re: Планерная (Зоопарк)
Закупка завершена.
Срок выполнения работ: 01.08.2022-01.11.2022.
Срок исполнения договора: 01.02.2023
Срок выполнения работ: 01.08.2022-01.11.2022.
Срок исполнения договора: 01.02.2023
- Вложения
-
- Протокол_рассмотрения_заявок_и_подведения_итогов.docx
- (34.08 КБ) 229 скачиваний
Федеральное финансирование Петербургскому метрополитену!
- в40
- Профессионал

- Сообщения: 14816
- Зарегистрирован: 05 фев 2009, 19:46
- Станция метро: Проспект Большевиков
- Откуда: Дачное
Re: Планерная (Зоопарк)
Молодцы!
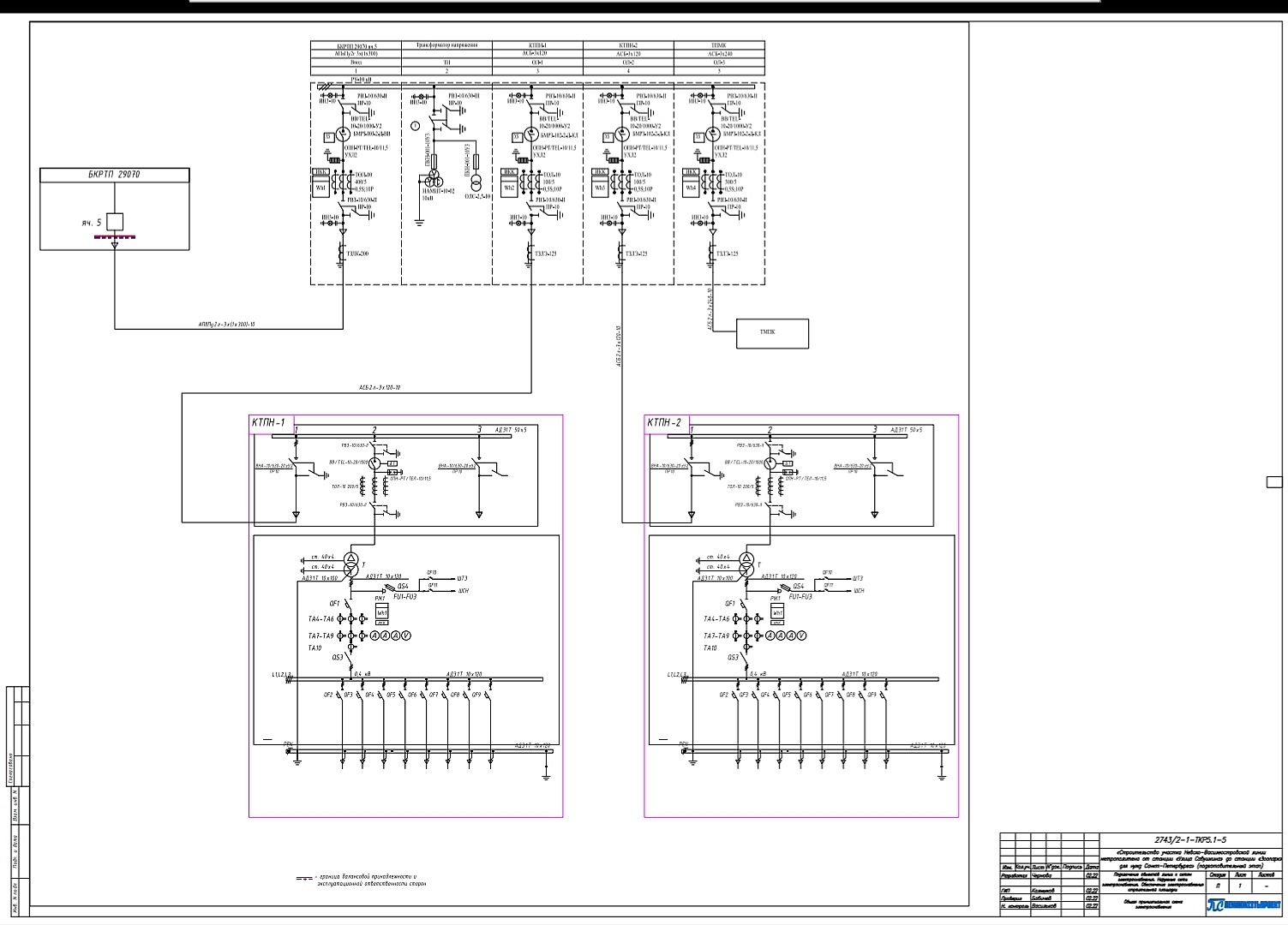
Провели конкурс на разработку проекта временного энергоснабжения стройплощадки.
Потом будет конкурс на реализацию этого проекта, т.е. прокладку кабельной линии от источника электроснабжения до потребителя (стройплощадки).
Потом надо будет предоставить кучу бумаг, чтобы на кабельную линию подать напряжение.
И только потом на стройплощадке появится источник энергоснабжения, благодаря чему ТПМК сможет "поехать".
Провели конкурс на разработку проекта временного энергоснабжения стройплощадки.
Потом будет конкурс на реализацию этого проекта, т.е. прокладку кабельной линии от источника электроснабжения до потребителя (стройплощадки).
Потом надо будет предоставить кучу бумаг, чтобы на кабельную линию подать напряжение.
И только потом на стройплощадке появится источник энергоснабжения, благодаря чему ТПМК сможет "поехать".
О=О=О=О=О=О=О=О=О=О=О=О=О=О=О=О=О=О=О
- TheSeaWind
- Сообщения: 340
- Зарегистрирован: 28 июн 2022, 14:52
- Станция метро: Балтийская Жемчужина
- Откуда: Улица Маршала Захарова
Re: Планерная (Зоопарк)
И не говорите. А казалось бы,все волишь ещё проложить основное питание к стройплощадкив40 писал(а): ↑19 июл 2022, 20:56 Молодцы!
Провели конкурс на разработку проекта временного энергоснабжения стройплощадки.
Потом будет конкурс на реализацию этого проекта, т.е. прокладку кабельной линии от источника электроснабжения до потребителя (стройплощадки).
Потом надо будет предоставить кучу бумаг, чтобы на кабельную линию подать напряжение.
И только потом на стройплощадке появится источник энергоснабжения, благодаря чему ТПМК сможет "поехать".
Федеральное финансирование Петербургскому метрополитену!
- TheSeaWind
- Сообщения: 340
- Зарегистрирован: 28 июн 2022, 14:52
- Станция метро: Балтийская Жемчужина
- Откуда: Улица Маршала Захарова
Re: Планерная (Зоопарк)
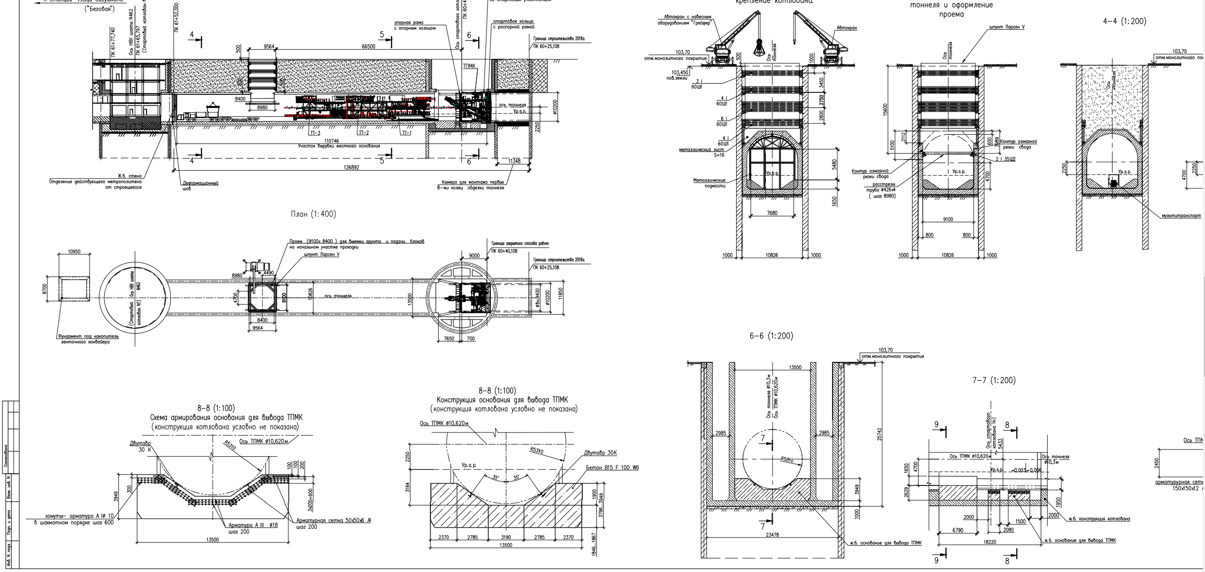
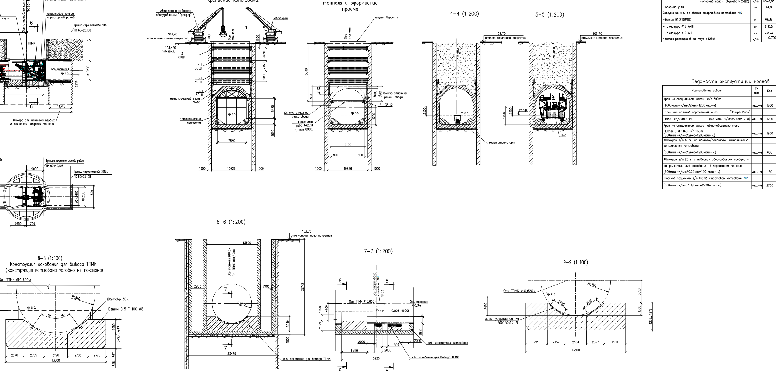
Из проектной документации для 462 шахты
Федеральное финансирование Петербургскому метрополитену!
- KarlUlrich
- Сообщения: 104
- Зарегистрирован: 27 июн 2022, 10:16
- Станция метро: Площадь Восстания
Re: Планерная (Зоопарк)
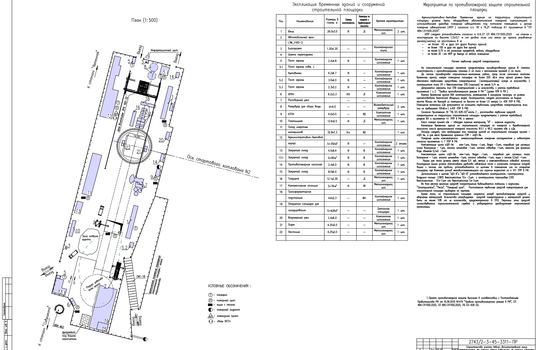
Видно что работы идут, но слишком медленно, увы обещание которое давали в начале года о начале строительства до Каменки оказались не реализованными. Дай бог что в 2023 начнут проходку/освоение площадок до Каменки.
- в40
- Профессионал

- Сообщения: 14816
- Зарегистрирован: 05 фев 2009, 19:46
- Станция метро: Проспект Большевиков
- Откуда: Дачное
Re: Планерная (Зоопарк)
В новом 2023 году можно начинать давать новые обещания...
О=О=О=О=О=О=О=О=О=О=О=О=О=О=О=О=О=О=О
- KarlUlrich
- Сообщения: 104
- Зарегистрирован: 27 июн 2022, 10:16
- Станция метро: Площадь Восстания
Re: Планерная (Зоопарк)
Можно конечно и так)
Вопрос по Каменке, как будут на перегоне сооружаться СУ, ОВУ если перегон двухпутный и как они сооружены на беговой ?
Вопрос по Каменке, как будут на перегоне сооружаться СУ, ОВУ если перегон двухпутный и как они сооружены на беговой ?
- koropet
- Сообщения: 186
- Зарегистрирован: 01 май 2012, 18:40
- Станция метро: Электросила
- Откуда: Санкт-Петербург
Re: Планерная (Зоопарк)
ОВУ N345 и N346 представляют собой ямы длиной 33,5м глубиной 1,85м и шириной 2м, внутри жесткого основания в которые ведут лестницы из междупутья.
- в40
- Профессионал

- Сообщения: 14816
- Зарегистрирован: 05 фев 2009, 19:46
- Станция метро: Проспект Большевиков
- Откуда: Дачное
Re: Планерная (Зоопарк)
В двухпутных тоннелях на перегонах нет СУ. А ОВУ - это яма в междупутье, из которой погружные насосы откачивают воду к ближайшим станциям. На мой взгляд, не самое лучшее решение, т.к. яма находится между контактными рельсами соседних путей.KarlUlrich писал(а): ↑25 ноя 2022, 16:56 Можно конечно и так)
Вопрос по Каменке, как будут на перегоне сооружаться СУ, ОВУ если перегон двухпутный и как они сооружены на беговой ?
О=О=О=О=О=О=О=О=О=О=О=О=О=О=О=О=О=О=О