Горный институт (проектное название "Большой проспект")
Модератор: Nomernoy
- Пумяух**
- Сообщения: 1384
- Зарегистрирован: 18 янв 2012, 21:33
- Станция метро: Крестовский Остров
Re: Большой проспект
А не пора ли тему переименовать?
-
Чау-чау
- Сообщения: 2592
- Зарегистрирован: 26 ноя 2011, 19:20
- Станция метро: Шкиперская
Re: Большой проспект
Контактная сеть в районе стройплощадки вестибюля перезавешена.
- zet
- Сообщения: 1949
- Зарегистрирован: 21 окт 2006, 21:23
- last_fm: vovka307
- Станция метро: Комендантский Проспект
- Откуда: Санкт-Петербург
- в40
- Профессионал

- Сообщения: 14816
- Зарегистрирован: 05 фев 2009, 19:46
- Станция метро: Проспект Большевиков
- Откуда: Дачное
Re: Большой проспект
Поэтому комитет приложит максимальные усилия, чтобы также открыть станцию "Большой проспект" ранее срока, обозначенного в контракте. Декабрь 2018 года – реалистичный сценарий, а при оптимистичном возможно открытие до начала чемпионата мира по футболу», – говорят в КРТИ...
Конечно возможно! А при самом оптимистичном - возможно даже к Новому 2015 году!

О=О=О=О=О=О=О=О=О=О=О=О=О=О=О=О=О=О=О
-
Randy
- Сообщения: 3170
- Зарегистрирован: 25 янв 2005, 13:31
Re: Большой проспект
судя по статьям, до начала ЧМ откроют Горный, а к декабрю 2018 - Большой )
- russobalt-t
- Сообщения: 897
- Зарегистрирован: 27 июл 2007, 21:18
- Станция метро: Площадь Восстания
- Откуда: Село Децкое))
Re: Большой проспект
А можно ЧМ на зиму перенести. И шансы успеть будут, и у наших худболистов шансов прибавится. Вернее, они появятся...
-
Gleb
- Сообщения: 898
- Зарегистрирован: 22 май 2006, 23:11
- Станция метро: Новочеркасская
Re: Большой проспект
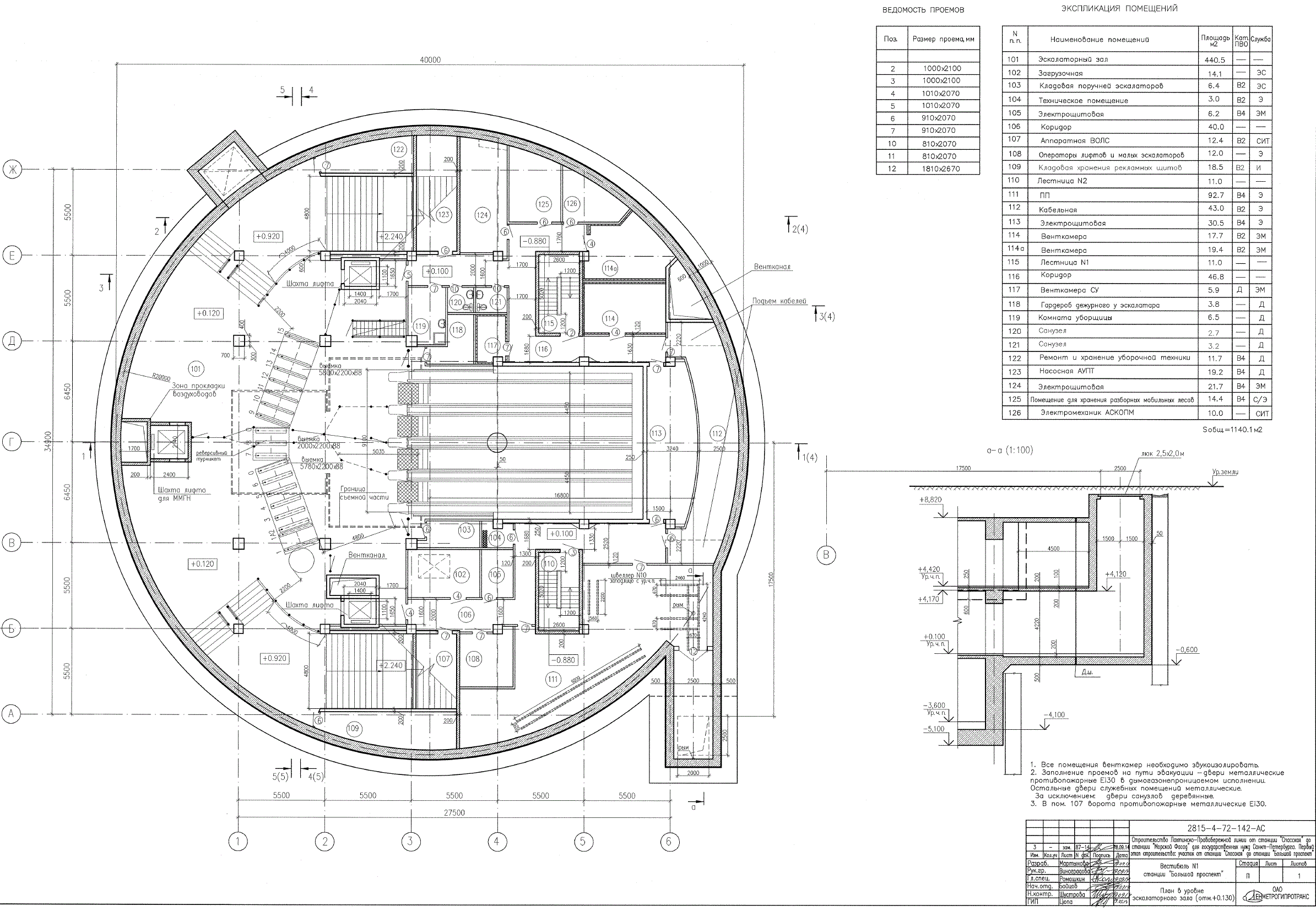
План станции из проекта (конкурсной документации):
Организация строительства станции:
Организация строительства станции:
-
Gleb
- Сообщения: 898
- Зарегистрирован: 22 май 2006, 23:11
- Станция метро: Новочеркасская
Re: Большой проспект
Схемы подземного вестибюля:
-
Cypok
- Сообщения: 2063
- Зарегистрирован: 29 мар 2006, 15:52
- Контактная информация:
Re: Большой проспект
Ого, первый круглый подземный вестибюль. Ещё заметил лестницы и эскалаторы рядом. Эскалаторы впервые до зоны турникетов.
Ну так сразу и не скажешь... да и вообще не люблю о себе говорить... скромный видно...
- Михаил
- Сообщения: 4333
- Зарегистрирован: 17 май 2004, 10:20
- Станция метро: Лиговский Проспект-2
- Откуда: Питер
Re: Большой проспект
И опять без подземных переходов под перекрестком...
-
Manhattan
- Сообщения: 1721
- Зарегистрирован: 20 сен 2012, 21:39
- Станция метро: Приморская
Re: Большой проспект
А где вообще будут выходы (в привязке к карте местности)? Под Большим проспектом хоть будет переход?
- Пумяух**
- Сообщения: 1384
- Зарегистрирован: 18 янв 2012, 21:33
- Станция метро: Крестовский Остров
Re: Большой проспект
Кажется, пропустил самое интересное: так вход на станцию будет через подземный переход?
-
Чау-чау
- Сообщения: 2592
- Зарегистрирован: 26 ноя 2011, 19:20
- Станция метро: Шкиперская
Re: Большой проспект
Имхо, единственное место на противоположной стороне Большого пр., куда можно вывести выходы из подземного перехода - это по обе стороны 24 - 25 линии http://maps.yandex.ru/?ll=30.258545%2C5 ... 2873864211
- karhu
- Сообщения: 3938
- Зарегистрирован: 31 дек 2008, 19:14
- Станция метро: Василеостровская
- Откуда: Санкт-Петербург
Re: Большой проспект
Наложите рисунки на карту.
Эскалаторный тоннель примерно под 40 градусов к Большому и 90 к Косой.
Выходы из перехода будут прям на месте парковки.
Эскалаторный тоннель примерно под 40 градусов к Большому и 90 к Косой.
Выходы из перехода будут прям на месте парковки.
Последний раз редактировалось karhu 01 дек 2014, 17:29, всего редактировалось 1 раз.
"Ключик на 60 дайте, пожалуйста".
-
Чау-чау
- Сообщения: 2592
- Зарегистрирован: 26 ноя 2011, 19:20
- Станция метро: Шкиперская
Re: Большой проспект
Это понятно. Просто выше зашёл разговор о переходе через Большой проспект, точнее, об его отсутствии; вот и решил высказать свои "посильные соображения".