Василеостровская. Второй выход

Модератор: Nomernoy

Ответить
Gleb
Сообщения: 898
Зарегистрирован: 22 май 2006, 23:11
Станция метро: Новочеркасская

Re: Василеостровская. Второй выход

Сообщение Gleb »

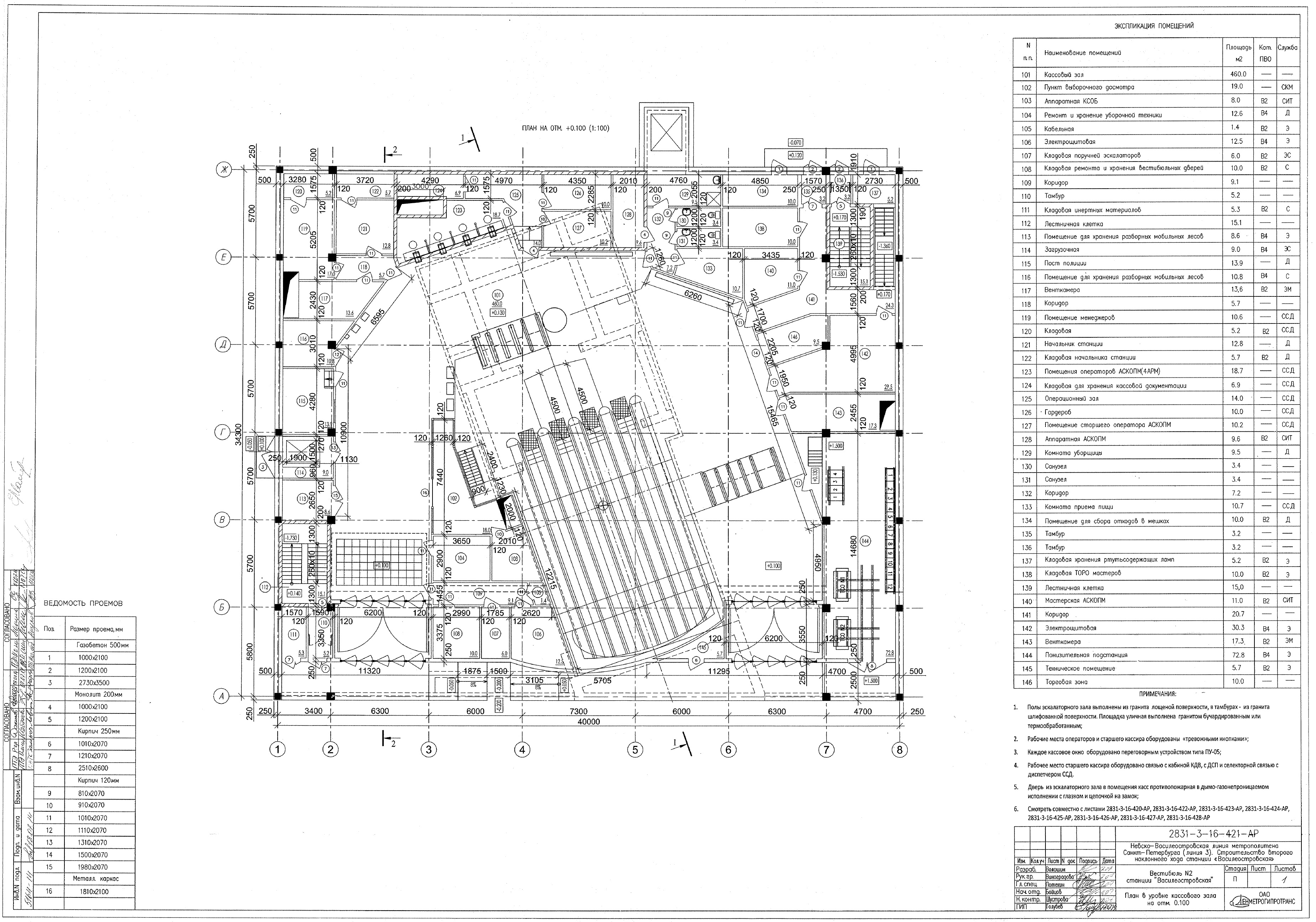
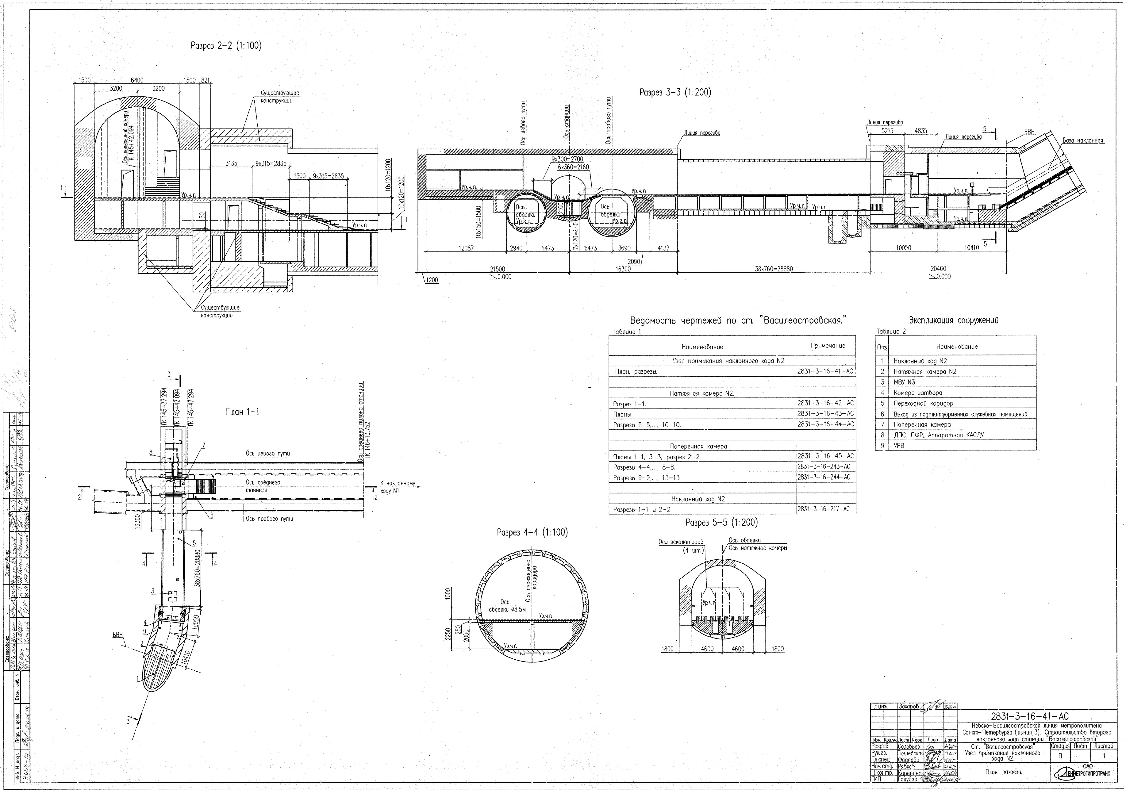
mx писал(а):Объявили конкурс на корректировку проектной документации. Срок исполнения - 23.09.2020.

Схемы из конкурсной документации. Проект, разработанный в 2013 году, который сейчас корректируют:
2 выход Василеостровская ПОС.jpg

2 выход Василеостровская.jpg

2 выход Василеостровская вест.jpg

2 выход Василеостровская вест1.jpg

2 выход Василеостровская вест2.jpg

2 выход Василеостровская вест3.jpg
Аватара пользователя
Михаил
Сообщения: 4333
Зарегистрирован: 17 май 2004, 10:20
Станция метро: Лиговский Проспект-2
Откуда: Питер

Re: Василеостровская. Второй выход

Сообщение Михаил »

Удивляет то, что диаметр перехода к эскалаторам и к станции Кольцевой линии всего 6м, учитывая, что это будет единственный выход со станции кольцевой линии, да еще и совмещенный с переходом.

Интересно, что именно будет пересмотрено в новом проекте???
Аватара пользователя
karhu
Сообщения: 3938
Зарегистрирован: 31 дек 2008, 19:14
Станция метро: Василеостровская
Откуда: Санкт-Петербург

Re: Василеостровская. Второй выход

Сообщение karhu »

Пересадочный узел будет напоминать пересадку Маяковская-Восстания в районе выхода на Московский вокзал.
"Ключик на 60 дайте, пожалуйста".
Аватара пользователя
GelezinisVilkas
Сообщения: 3658
Зарегистрирован: 15 май 2015, 12:19
Станция метро: Дунайская

Re: Василеостровская. Второй выход

Сообщение GelezinisVilkas »

̶Л̶Г̶Б̶Т̶ш̶н̶и̶к̶и̶ ЛМГТшники как всегда в своём репертуаре на выходе с кольцевой нужно будет сначала спуститься по ступенькам вниз, потом снова подняться наверх.
Что мешало сразу сделать ещё один марш лестницы до уровня пола поперечной камеры и сделать уровень пола пересадки и выход в одном уровне, подняв уровень выхода?
Что мешает поставить эскалаторы с платформы в поперечную камеру?
:twisted:
Аватара пользователя
MaksegZ
Сообщения: 4551
Зарегистрирован: 15 янв 2006, 06:54
Станция метро: Московская
Откуда: Питер
Контактная информация:

Re: Василеостровская. Второй выход

Сообщение MaksegZ »

Как обычно, меньше 5 метров подъем - значит эскалатор не обязателен, ножками, ножками, уважаемые пассажиры. Мне вот интересно, у нас когда-нибудь начнут делать проекты станций глубокого заложения, доступные для маломобильных категорий, я понимаю,что сложно приспособить старые станции, но лепить с нуля проекты, которые этого не учитывают в принципе?
Дунайская течёт... как вы судно назовёте, так оно и поплывёт :)

"Надо строить быстро, качественно и недорого" © правительство СПб

Создал чат в ТГ, присоединяемся - https://t.me/subwaytalks
Аватара пользователя
в40
Профессионал
Профессионал
Сообщения: 14816
Зарегистрирован: 05 фев 2009, 19:46
Станция метро: Проспект Большевиков
Откуда: Дачное

Re: Василеостровская. Второй выход

Сообщение в40 »

GelezinisVilkas писал(а):Что мешает поставить эскалаторы с платформы в поперечную камеру?

Если я правильно понимаю, эскалаторы нельзя поставить из-за невозможности создания накопительной площадки в уровне платформы.
Даже лестничный марш, спускающийся на платформу, находится вровень с дверным проёмом, что тоже нехорошо, т.к. пассажиры, поднимающиеся или спускающиеся с лестницы, будут мешать выходящим из вагонов. Его следовало бы сдвинуть хотя бы на два-три метра ближе к поперечной камере.
О=О=О=О=О=О=О=О=О=О=О=О=О=О=О=О=О=О=О
Аватара пользователя
GelezinisVilkas
Сообщения: 3658
Зарегистрирован: 15 май 2015, 12:19
Станция метро: Дунайская

Re: Василеостровская. Второй выход

Сообщение GelezinisVilkas »

Э-э а вот лестничные спуски в центре платформ Гостинки и Маяковской почему то никому не мешают.
Да и кстати эскалатору не требуется промежуточная площадка как на лестницах и угол его подъёма больше, в длину он занимает меньше места. Соответственно вход на эскалатор будет дальше от дверей, чем при установке лестницы.
В данном случае можно установить ограждения для создания накопительной площадки только в центральной части и проблемы не будет.
Последний раз редактировалось GelezinisVilkas 18 окт 2019, 21:15, всего редактировалось 1 раз.
:twisted:
Аватара пользователя
GelezinisVilkas
Сообщения: 3658
Зарегистрирован: 15 май 2015, 12:19
Станция метро: Дунайская

Re: Василеостровская. Второй выход

Сообщение GelezinisVilkas »

MaksegZ писал(а):Мне вот интересно, у нас когда-нибудь начнут делать проекты станций глубокого заложения, доступные для маломобильных категорий, я понимаю,что сложно приспособить старые станции, но лепить с нуля проекты, которые этого не учитывают в принципе?

Может и начнут, когда поймут что надо делать 3 эскалатора и лифт вместо 4-х эскалаторов в наклонах.
Хотя уже сейчас на некоторых пересадках ничего не мешает ставить лифты.
Хотя где вы видели работающие лифты в нашем метрополитене. Не удивлюсь если и в метрополитеновских зданиях все лифты отключены.
:twisted:
Аватара пользователя
MaksegZ
Сообщения: 4551
Зарегистрирован: 15 янв 2006, 06:54
Станция метро: Московская
Откуда: Питер
Контактная информация:

Re: Василеостровская. Второй выход

Сообщение MaksegZ »

GelezinisVilkas писал(а):Хотя уже сейчас на некоторых пересадках ничего не мешает ставить лифты.

на Гостинке было бы неплохо перенести куда-нибудь этот ужасный сарай над переходом на МПЛ и то, что в нем располагается, и на его месте встроить лифт между платформами а в лестницу внизу врезать наклонный пандус или, что лучше, саму лестницу заменить на спуск под небольшим наклоном.
Дунайская течёт... как вы судно назовёте, так оно и поплывёт :)

"Надо строить быстро, качественно и недорого" © правительство СПб

Создал чат в ТГ, присоединяемся - https://t.me/subwaytalks
Аватара пользователя
GelezinisVilkas
Сообщения: 3658
Зарегистрирован: 15 май 2015, 12:19
Станция метро: Дунайская

Re: Василеостровская. Второй выход

Сообщение GelezinisVilkas »

Лестницу там пологим спуском никак не заменить, но можно попробовать сделать пандус до края первого проёма.
А вот если первые от лестницы проёмы закрыть то вполне можно сделать пологий спуск.
:twisted:
andrianov
Сообщения: 55
Зарегистрирован: 13 апр 2005, 00:45
Станция метро: Василеостровская
Откуда: Питер
Контактная информация:

Re: Василеостровская. Второй выход

Сообщение andrianov »

На 10 линии начались буровые работы
Вложения
photo_2019-11-12_15-09-34.jpg
photo_2019-11-12_15-09-33.jpg
Аватара пользователя
mihanick
Сообщения: 2
Зарегистрирован: 15 ноя 2019, 18:47
Станция метро: Ладожская
Откуда: Питер

Re: Василеостровская. Второй выход

Сообщение mihanick »

GelezinisVilkas писал(а):Может и начнут, когда поймут что надо делать 3 эскалатора и лифт вместо 4-х эскалаторов в наклонах.

Интересно, как вы себе представляете лифт на глубоком заложении? При глубине 56 метров смещение натяжной камеры эскалаторов составляет примерно 100 метров по горизонтали от машинного зала в вестибюле. То есть, чтобы лифт приезжал в вестибюль, надо копать горизонтальную выработку порядка 100 метров куда-то за наклонный ход, куда придется топать людям. Далее, по нормативам, лифт должен иметь хотя бы сервисные остановки не реже каждых 11 метров, то есть, в нашем случае, 4 промежуточные площадки между нижним этажом и вестибюлем. То есть, мы получаем еще и лестничную клетку высотой 56 метров при шахте лифта. Лестничная клетка практически гарантированно становится Н2, с подпором воздуха при пожаре и дымоудалением с каждого этажа. Это тащит за собой вентиляционную шахту и кабельную шахту. Кабельную шахту тоже надо вентилировать. Да и одного лифта явно будет недостаточно. В итоге, получается очень приличное сооружение. Вопрос, оно того стоит? Если раньше был только наклонный ход - гипотенуза с углом наклона 30 градусов, то с лифтами придется достраивать еще 2 катета. Этак стоимость вырастет в разы и мы новые станции будем получать гораздо реже, чем сейчас.
Two beer or not two beer?..
Аватара пользователя
mihanick
Сообщения: 2
Зарегистрирован: 15 ноя 2019, 18:47
Станция метро: Ладожская
Откуда: Питер

Re: Василеостровская. Второй выход

Сообщение mihanick »

GelezinisVilkas писал(а):Может и начнут, когда поймут что надо делать 3 эскалатора и лифт вместо 4-х эскалаторов в наклонах.

Интересно, как вы себе представляете лифт на глубоком заложении? При глубине 56 метров смещение натяжной камеры эскалаторов составляет примерно 100 метров по горизонтали от машинного зала в вестибюле. То есть, чтобы лифт приезжал в вестибюль, надо копать горизонтальную выработку порядка 100 метров куда-то за наклонный ход, куда придется топать людям. Далее, по нормативам, лифт должен иметь хотя бы сервисные остановки не реже каждых 11 метров, то есть, в нашем случае, 4 промежуточные площадки между нижним этажом и вестибюлем. То есть, мы получаем еще и лестничную клетку высотой 56 метров при шахте лифта. Лестничная клетка практически гарантированно становится Н2, с подпором воздуха при пожаре и дымоудалением с каждого этажа. Это тащит за собой вентиляционную шахту и кабельную шахту. Кабельную шахту тоже надо вентилировать. Да и одного лифта явно будет недостаточно. В итоге, получается очень приличное сооружение. Вопрос, оно того стоит? Если раньше был только наклонный ход - гипотенуза с углом наклона 30 градусов, то с лифтами придется достраивать еще 2 катета. Этак стоимость вырастет в разы и мы новые станции будем получать гораздо реже, чем сейчас.
Two beer or not two beer?..
Аватара пользователя
karhu
Сообщения: 3938
Зарегистрирован: 31 дек 2008, 19:14
Станция метро: Василеостровская
Откуда: Санкт-Петербург

Re: Василеостровская. Второй выход

Сообщение karhu »

Недавно у Пятёрки.
20191205_164853.jpg


А сейчас две буровые работают в сквере по соседству.
20191208_201056.jpg
"Ключик на 60 дайте, пожалуйста".
Lashner
Сообщения: 374
Зарегистрирован: 27 сен 2006, 12:40

Re: Василеостровская. Второй выход

Сообщение Lashner »

Оповещение по публичным слушаниям по документации: «Проект планировки и проект межевания территории для размещения линейного объекта «Строительство второго вестибюля станции "Василеостровская"»
Ответить

Вернуться в «Строительство и проектирование»