Беговая (Улица Савушкина)
Модератор: Nomernoy
-
fitter
- Сообщения: 123
- Зарегистрирован: 01 май 2011, 11:36
- Станция метро: Шушары
Re: Беговая (Улица Савушкина)
Наверное второе утро подряд что-то бетонируют.
- karhu
- Сообщения: 3938
- Зарегистрирован: 31 дек 2008, 19:14
- Станция метро: Василеостровская
- Откуда: Санкт-Петербург
Re: Беговая (Улица Савушкина)
Это всё идёт в тоннель.
А в воскресенье-понедельник залили 3-ю часть 3-ей и полностью 4-ю захватки верхней плиты.
А в воскресенье-понедельник залили 3-ю часть 3-ей и полностью 4-ю захватки верхней плиты.
"Ключик на 60 дайте, пожалуйста".
- Nomernoy
- Профессионал

- Сообщения: 5193
- Зарегистрирован: 10 окт 2005, 16:25
- Станция метро: Театральная
- Откуда: Санкт-Петербург
- karhu
- Сообщения: 3938
- Зарегистрирован: 31 дек 2008, 19:14
- Станция метро: Василеостровская
- Откуда: Санкт-Петербург
Re: Беговая (Улица Савушкина)
Нет.
Ещё осталась 5-я захватка перхней плиты, а именно верхней плиты примыкания к НВУ463.
Она будет на отметке +11,900 вместо + 15.100.
Этот участок, примыкание к НВУ463, должен будет сооружаться стандартным способом, т.е. на всю высоту выбрается порода и поочерёдно установливаются расстрелы, затем идёт выравнивающая стяжка, гидроизоляция и бетонирование основания, стен и перекрытий снизу вверх.
Пока к нему не преступали, сейчас в том месте находится временный отвал породы со следующего яруса.
Ещё осталась 5-я захватка перхней плиты, а именно верхней плиты примыкания к НВУ463.
Она будет на отметке +11,900 вместо + 15.100.
Этот участок, примыкание к НВУ463, должен будет сооружаться стандартным способом, т.е. на всю высоту выбрается порода и поочерёдно установливаются расстрелы, затем идёт выравнивающая стяжка, гидроизоляция и бетонирование основания, стен и перекрытий снизу вверх.
Пока к нему не преступали, сейчас в том месте находится временный отвал породы со следующего яруса.
"Ключик на 60 дайте, пожалуйста".
- karhu
- Сообщения: 3938
- Зарегистрирован: 31 дек 2008, 19:14
- Станция метро: Василеостровская
- Откуда: Санкт-Петербург
Re: Беговая (Улица Савушкина)
Простите мне мою нерасторопность при наборе текста!
"Ключик на 60 дайте, пожалуйста".
- ooo
- Сообщения: 1909
- Зарегистрирован: 15 янв 2014, 21:47
- Станция метро: Петроградская
На полпути до Беговой. Репортаж со стройки новой станции
Сюжет канала Санкт-Петербург:
http://topspb.tv/uploads/video/110030.mp4
http://topspb.tv/uploads/video/110030.mp4
На полпути до «Беговой». Репортаж со стройки новой станции петербургской подземки
В 2018 году на схеме метро Петербурга должна появиться ещё одна станция — «Беговая». Она продлит «зелёную» ветку. Впервые за 50 лет там применят технологию «горизонтального лифта» — поезда отделят от пассажиров автоматические двери, как, например, на «Маяковской». Но до этого этапа ещё далеко. Чем сейчас заняты метростроители, с какими сложностями сталкиваются и как их преодолевают, узнала Мария Евсюкова.
Максим Губин, главный инженер проекта: «Вот нанесена наша Невско-Василеостровская линия. Здесь улица Савушкина, станция метро "Новокрестовская". Тут плескалось море. Буквально 70 лет назад здесь не было ничего. Далее это было отсыпано. И когда мы вели проходку через эти насыпные грунты, у нас зачастую из-за того, что грунт разубожен, происходило обрушение форшахты».
Строительство продолжения зеленой ветки от «Приморской» до «Беговой» неоднократно срывалось. То из будущей станции били глиняные фонтаны, то буровой щит «Надежда» ломался. Над решением всех этих проблем руководитель проекта провел немало бессонных ночей. Перед Геннадием Андреевым стояла непростая задача — наладить механизм работы в сложных геологических условиях.
Геннадий Андреев, руководитель проекта ООО «СМУ №13 Метрострой»: «Как вы видите, грунт, его даже сложно назвать грунтом, эта такая масса, называемая жижей. Здесь очень сложно работать технике. По центру, где проходит тоннель, с которым мы можем работать, вправо-влево, техника уже тонет, приходится придумывать различного рода мероприятия, временные бетонные основания, либо плиты, либо техника с широкими гусеницами».
Верхний слой (четвертичный), через который будет проходить новая станция, весьма неустойчив. В нем преобладает строительный мусор, торфяник и вода. В советские годы в Петербурге все подземные комплексы возводили на глубине от 40 до 60 метров, где находятся древние протерозойские глины. Они наиболее устойчивы и благоприятны для строительства. Правда, сегодня так глубоко копать необязательно.
Максим Губин, главный инженер проекта: «В первую очередь по периметру станции возводятся ограждающие конструкции, используют метод стена в грунте. Глубина ограждающей конструкции 36 метров от поверхности земли. Ширина стены в грунте — метр. Далее ведутся работы по устройству верхнего перекрытия — это монолитная конструкция, так называемое ребристое перекрытие».
Получается, этот монолитный короб защищает строительство не только от плывущего грунта, но и от горного давления, которое возникает при проведении подземных работ и влияет на устойчивость возводимых конструкций.
Геннадий Андреев, руководитель проекта ООО «СМУ №13 Метрострой»: «Подходим к месту разработки грунта, собственно говоря, здесь грунт уже разработан. Выполнена подготовка стен под нанесение гидроизоляции, здесь еще подготавливаются стены под нанесение цементного слоя».
Кстати, это первый ярус станции «Беговая», здесь расположатся кассы и турникеты. Чтобы попасть сюда, для пассажиров установят лестницы и траволаторы. Следующий уровень — для персонала, за ним следует 3 — это непосредственно платформа. Попасть на которую можно будет не только привычным способом. Для маломобильных граждан установят лифты. Кстати, всего уровней четыре. Еще один технический — под платформой. Общая глубина станции — 18 метров.
Мария Евсюкова, корреспондент: «Раньше станции метро, которые находились близко к поверхности земли, строили открытым способом, вырывался котлован и с его дна вырастала станция. Сейчас в условиях плотной застройки это практически невозможно, со всех сторон будущую станцию окружают многоэтажки и торговые центры. Поэтому «Беговую» возводят по обратному принципу — сверху вниз. Кстати, сейчас у строителей, можно сказать, экватор. Они добрались до тоннеля, на котором мы сейчас и стоим».
Еще одна особенность «Беговой» — автоматические двери. От зоны поездов пассажиров будет отделять глухая стена. Такой тип станции называют «горизонтальным лифтом». Всего в Петербурге их 10, включая "Маяковскую", "Гостиный двор" и "Петроградскую". Впрочем, эта технология прижилась только в Северной столице. Однако больше полувека не использовалась. Но «Беговая» не будет похожа на аналогичные станции: её платформы расположатся по бокам, а «центральную» часть тоннеля займут поезда. Ожидаемый пассажиропоток станции — почти 13 тыс. человек в час. Поезда будут ходить каждые две минуты. Впрочем, «Осторожно двери закрываются, следующая станция Беговая» пассажиры услышат только в 2018 году.
не верь, не бойся, не проси
- Brayn
- Сообщения: 945
- Зарегистрирован: 17 янв 2007, 10:40
- Станция метро: Девяткино
-
SPB_Metro
Re: Беговая (Улица Савушкина)
Brayn писал(а):Из репортажа выше.
Жаль, что мало видеорепортажа, но это лучше чем ничего. Спасибо Brayn.
Вижу, как ребятам приходится работать в таких условиях, дышать сыростью грунтовых вод да жиж. Но всё равно, они молодцы.
- karhu
- Сообщения: 3938
- Зарегистрирован: 31 дек 2008, 19:14
- Станция метро: Василеостровская
- Откуда: Санкт-Петербург
-
Roskas
- Сообщения: 586
- Зарегистрирован: 13 авг 2008, 08:55
- Откуда: Санкт-Петербург, МПЛ
Re: Беговая (Улица Савушкина)
Прошу прощения, но что такое АС?
Недопущение самопроизвольного перемещения в соответствии с поступившей информацией по радиовещанию.
-
Manhattan
- Сообщения: 1721
- Зарегистрирован: 20 сен 2012, 21:39
- Станция метро: Приморская
Re: Беговая (Улица Савушкина)
Атлантик Сити вероятно
-
Cypok
- Сообщения: 2015
- Зарегистрирован: 29 мар 2006, 15:52
- Контактная информация:
Re: Беговая (Улица Савушкина)
Ну так сразу и не скажешь... да и вообще не люблю о себе говорить... скромный видно...
- Curiosity
- Сообщения: 156
- Зарегистрирован: 12 мар 2016, 21:28
- Станция метро: Спортивная-2
Re: Беговая (Улица Савушкина)
Из репортажа выше, я что то не понял: а разве вход на станцию будет не из подземного перехода на месте пересечения улиц Савушкина и Туристской? Что это за вестибюльчик нарисован?
- ArtTrapeza
- Сообщения: 833
- Зарегистрирован: 30 дек 2006, 11:56
- Станция метро: Проспект Просвещения
Re: Беговая (Улица Савушкина)
Как уже неоднократно обсуждалось, выхода в подземный переход на пересечении улицы Савушкина и Туристской не будет, к сожалению.
- ooo
- Сообщения: 1909
- Зарегистрирован: 15 янв 2014, 21:47
- Станция метро: Петроградская
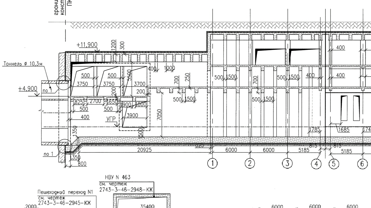
Беговая: технический подход
газета Метростроитель №10 (3725) октябрь 2016
«Беговая»: технический подход
О ходе работ на «горящем» объекте Метростроя, станционном комплексе «Беговая», рассказывает «Метростроителю» Геннадий Андреев, заместитель генерального директора ООО «СМУ №13 Метрострой», руководитель проекта по строительству станционного комплекса «Беговая».
Кратко и по сути
На отметке 15.100 в полном объеме завершено бетонирование плиты покрытия котлована станции «Беговая». В настоящее время под плитой разработано более 50% объема грунта – около 12000 кубометров.
На отметке 9.90 началось устройство плиты первого перекрытия: по шести осям развернулись арматурные работы и уже забетонирована первая захватка. Параллельно на этом участке изолировщики готовят стены в грунте к нанесению гидроизоляции.
В течение следующих двух недель на этом участке планируется забетонировать стены и перейти к разработке грунта ниже: для устройства перекрытия уже на отметке 6.40. Здесь начнется армирование так называемых «балконов» – боковых участков второго перекрытия.
В начале следующего года начнется и демонтаж железобетонной обделки, оставшейся после прохода щита. Тогда же можно будет участками замыкать и бетонировать центральную часть плиты второго перекрытия на 6.40.
Способ демонтажа и выдачи обделки на поверхность не будет принципиально отличаться от технологии, принятой на станции «Дунайский проспект». Но для ускорения демонтажа, возможно, мы задействуем два манипулятора.
Уже в конце октября под плитой покрытия до отметки 7.27 (до шелыги свода) разработка грунта должна быть в целом закончена. Перекрытие на 9.90 мы должны забетонировать до конца ноября.
Что мы сделали, чтобы сократить отставание
Постарались как можно шире открыть фронт работ и поставить на участки разработки грунта больше производительной техники и людей. Сейчас на «земляных» работах, выдаче и погрузке задействовано около 20 единиц техники. Для разработки грунта в забое мы используем 22-тонные экскаваторы, для горизонтальной транспортировки породы под плитой покрытия – мини-экскаваторы Fiori. Фронтальный погрузчик CASE 695 организует отвал. На поверхности отгрузку в самосвалы обеспечивают полуторакубовый грейфер Komatsu и длиннорукий экскаватор. Под плитой покрытия пилят и рубят временное жесткое основание стенорезные машины и четыре гидромолота (Brokk-400 и ТОП-ТЕК).
Если в начале разработки котлована мы выдавали порядка 150, может быть, 200 кубов грунта в сутки, то сейчас объемы выросли до 500 кубов в «твердом теле». По факту получается около 800 кубов в разрыхленном виде. Но остается проблема с вывозкой грунта, на площадке скапливается до 3500 м3 грунта, что ведет к уменьшению объемов разработки и значительно усложняет логистику на строительной площадке.
Растет и коллектив строителей. Ведь на площадке все взаимосвязано: быстрее разрабатывается грунт, значит, требуется больше бетонщиков на устройство временного жесткого основания, больше изолировщиков – на устранение водопроявлений и нанесение гидроизоляции, больше сварщиков на монтаж опорных столиков и т.д.
В целом мы планируем ликвидировать месячное отставание по графику, утвержденному КРТИ, к концу года. Но для этого необходимо отладить вывоз грунта и обеспечить площадку материалами.
Вывоз грунта: АТП, давай машины!
Проблемы остались. Мы по-прежнему вынуждены создавать отвалы на площадке. Например, вчера была только одна машина. Зато сегодня праздник: АТП обещает подать 15 самосвалов. В смену на «Беговую» необходимо подавать 15-20 машин, соответственно, в сутки 30-40. Мы пытаемся подключать к работе и других перевозчиков. В октябре в основном вывозили машинами «Гепарда». Но отвалы растут, и это серьезно препятствует дальнейшему производству работ: тормозится разработка котлована в осях 1-1`, НВУ-463, в зоне пешеходных переходов 1 и 2, а также в забое самой станции. Мы по-прежнему вынуждены перебрасывать машины с грунтом по площадке. Парк машин в АТП значительно усилился, но мы пока этого не почувствовали. Машин выделяется на «Беговую» для вывозки грунта недостаточно.
Поставки материалов опять уперлись в деньги
Перекрытие на отметке 9.90 основными стройматериалами, в том числе гидроизоляцией и арматурой, укомплектовано. Но на следующее перекрытие – 6.40 и на НВУ-463 у нас нет ничего: ни металла, ни арматуры, ни гидроизоляции. Нет металла (опорные пояса, расстрелы, трубы, двутавровые балки) и на раскрепление котлована в осях 1-1`. Если сейчас поставки не будут выполнены, то все, что мы пытаемся наверстать, будет потеряно.
А все как всегда упирается в деньги: любые платежи, в том числе, и заработную плату, приходится буквально выбивать. Что-то доказывать – это наше постоянное состояние. Если даже такие очевидные платежи, как налоги и зарплата, не согласовываются заказчиком, то как можно прогнозировать поставки материалов?
Приемка работы, подписание исполнительной документации, актов приемки работ КС-2 и КС-3 – практически на каждом из этих этапов возникает миллион вопросов. На их решение тратится недопустимо много драгоценного времени. Большая часть наших смет до сих пор находится в стадии согласования, исправления замечаний и т.д. Выполнение работ не подписано с апреля. Не подписано выполнение готовой плиты покрытия, части стены в грунте, части свай-колонн, струйная цементация грунтов, обслуживающие процессы, целый ряд вспомогательных работ и пр. И это все при том, что претензий к качеству сданных работ нет. С июля 2015 года мы работали с использованием дизельных электростанций – затраты на выработку электроэнергии до сих пор не компенсированы. Почему?
Стройка – это живой организм, и для того чтобы выполнить какую-то часть работ, нужно привлечь подрядчика, оплатить услуги транспортной компании, аренду техники, выплатить, в конце концов, зарплату рабочим. Не имея оборотных средств, мы ничего этого сделать не можем.
Еще момент: даже если деньги перечислены, мы не всегда можем ими воспользоваться. Я говорю сейчас о механизме банковского сопровождения, который создан не во славу, а за упокой строительной отрасли. С таким «сопровождением» ни о каком оперативном управлении строительным процессом речи быть не может.
Если вышеназванные проблемы не будут сняты, мы закончим выборку грунта на отметке 9.90 и остановимся. Начать работы на плите перекрытия 6.4 не сможем: просто нет больше материалов. Если живые деньги сейчас не получим, то отставание будет нарастать буквально с сегодняшнего дня. На неделю, на две, на месяц и так далее. Зарплаты нет – половина бригад сразу разбежится, половина чуть попозже. Собирать их получается небыстро.
Дмитрий Бабурин, заместитель начальника участка №2 ООО «СМУ №13 Метрострой»:
– «Беговая» – объект горящий, нам надо его заканчивать, и чем быстрее – тем лучше. Работа на площадке идет круглосуточно и безостановочно. Пытаемся набирать темпы всеми возможными способами. Все силы нашего Управления генеральный директор направляет именно сюда. Простаивать мы не можем. Даже если нет машин, мы обязаны разрабатывать котлован и выдавать грунт на поверхность, так как сроки, сами понимаете, нам никто не отменит.
- Вложения
-
- begovaya-004.png (114.71 КБ) 10635 просмотров
не верь, не бойся, не проси
