Путиловская

Модератор: Nomernoy

Ответить
Аватара пользователя
в40
Профессионал
Профессионал
Сообщения: 14776
Зарегистрирован: 05 фев 2009, 19:46
Станция метро: Проспект Большевиков
Откуда: Дачное

Re: Путиловская

Сообщение в40 »

Lebowskyspb писал(а):А когда может начать меняться?)

Пока не будут решены финансовые вопросы (закупка чугунных тюбингов для проходки всего н/х) - заморозка грунта не начнётся.
О=О=О=О=О=О=О=О=О=О=О=О=О=О=О=О=О=О=О
Gleb
Сообщения: 898
Зарегистрирован: 22 май 2006, 23:11
Станция метро: Новочеркасская

Re: Путиловская

Сообщение Gleb »

Из статьи "Метростроя" по итогам года:

На «Путиловской» начали с боковых тоннелей, где перебирается пилот-тоннель из диаметра 5,6м в диаметр бокового станционного тоннеля 9,8м. «Путиловская», кстати, единственная из четырех станций колонного типа. Остальные – пилонные.

Кроме того, хоть об этом мы и не писали, но большой объем работ выполнен на сооружении переходного узла между ст. «Путиловская» и ст. «Кировский завод». В течение года проходчики ОП ГСУ «Адмиралтейское» сооружали камеру лестничных спусков и натяжную камеру. Обслуживает проходку шахта 844. На сегодня обе камеры, можно сказать, сооружены в общем объеме, ведется сооружение внутренних конструкций, а также кабельного ходка.

Натяжная камера, армирование обратного свода:
A4CNwIILw0M.jpg

Камера лестничных спусков:
Камера лестничных спусков.jpg

irNcBcCVb0w.jpg

Кабельный ходок:
Кабельный ходок.jpg
Аватара пользователя
Михаил
Сообщения: 4333
Зарегистрирован: 17 май 2004, 10:20
Станция метро: Лиговский Проспект-2
Откуда: Питер

Re: Путиловская

Сообщение Михаил »

Впечатляет
Gleb
Сообщения: 898
Зарегистрирован: 22 май 2006, 23:11
Станция метро: Новочеркасская

Re: Путиловская

Сообщение Gleb »

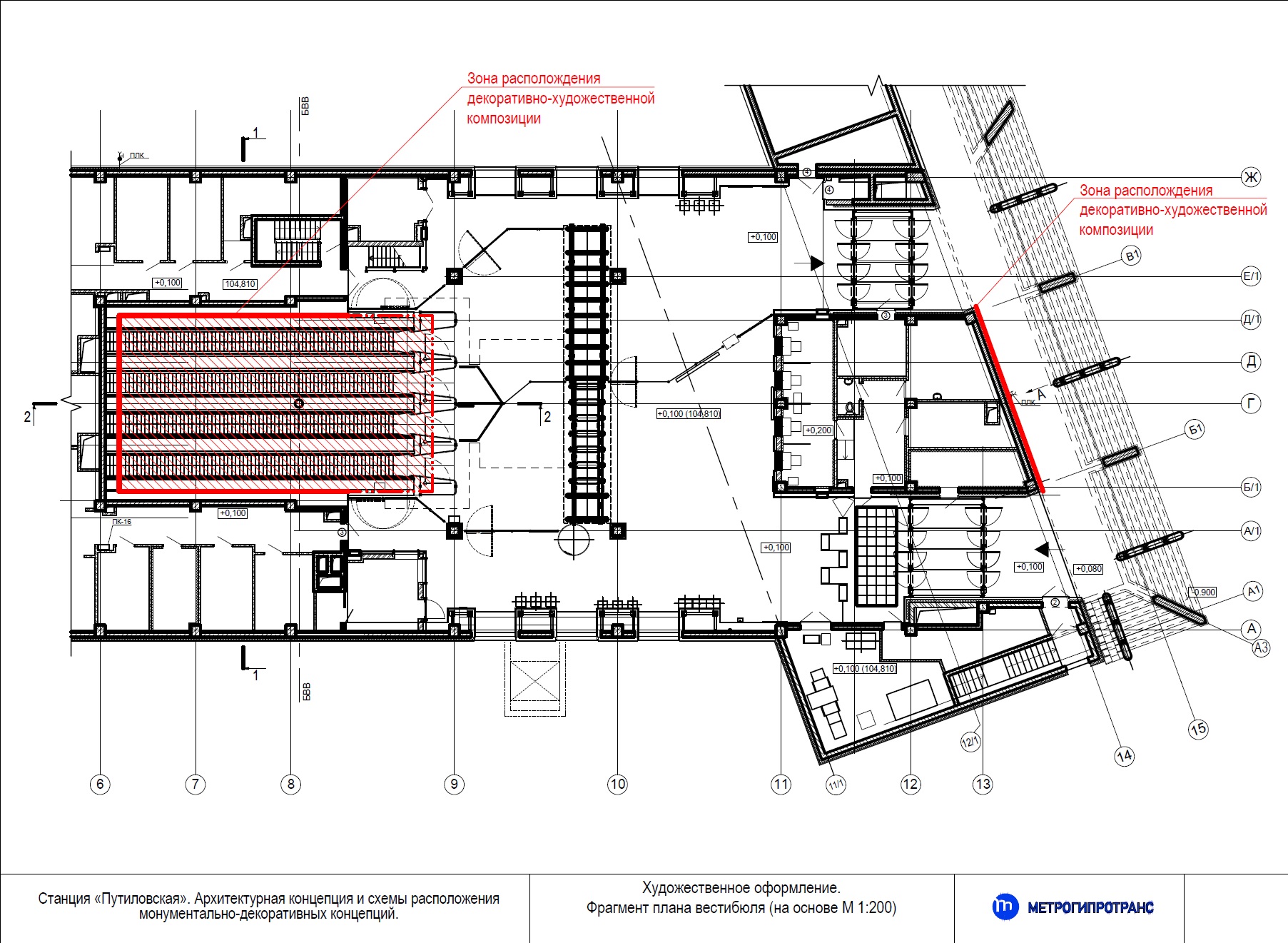
В прошлом году АО "Метрогипротранс" проводил ТВОРЧЕСКИЙ КОНКУРС НА КОНЦЕПЦИЮ МОНУМЕНТАЛЬНО-ДЕКОРАТИВНОГО РЕШЕНИЯ ПО СТАНЦИЯМ «ЮГО-ЗАПАДНАЯ» («КАЗАКОВСКАЯ») И «ПУТИЛОВСКАЯ».

Некоторые схемы из конкурсной документации:

Путиловская_1_арх_конкурс.jpg

Путиловская_2_арх_конкурс.jpg

Путиловская_3_арх_конкурс.jpg
Gleb
Сообщения: 898
Зарегистрирован: 22 май 2006, 23:11
Станция метро: Новочеркасская

Re: Путиловская

Сообщение Gleb »

Летние фото строительства пересадки "Путиловская"-"Кировский завод":
Пут-КирЗ_0.jpg

Пут-КирЗ_1.jpg

Пут-КирЗ_2.jpg

Пут-КирЗ_3.jpg
Аватара пользователя
W0LF
Сообщения: 751
Зарегистрирован: 09 ноя 2019, 21:50
Станция метро: Рыбацкое

Re: Путиловская

Сообщение W0LF »

Сегодня, 4 марта 2021. Хоть рабочие на площадке видны.
Вложения
pytil.jpg
Аватара пользователя
W0LF
Сообщения: 751
Зарегистрирован: 09 ноя 2019, 21:50
Станция метро: Рыбацкое

Re: Путиловская

Сообщение W0LF »

27.05.2021.
Вложения
20210527.jpg
Icefer
Сообщения: 1333
Зарегистрирован: 10 июл 2019, 22:38
Станция метро: Морской Фасад

Re: Путиловская

Сообщение Icefer »

За полтора года 0 изменений на поверхности. А когда они собираются НХ проходить? И чем, руками как на ЮЗ, или щитом как на ГИ?
Аватара пользователя
W0LF
Сообщения: 751
Зарегистрирован: 09 ноя 2019, 21:50
Станция метро: Рыбацкое

Re: Путиловская

Сообщение W0LF »

Руками.
Icefer
Сообщения: 1333
Зарегистрирован: 10 июл 2019, 22:38
Станция метро: Морской Фасад

Re: Путиловская

Сообщение Icefer »

В комментах у Подземника пишут что ЛСТ 137 колец, ПСТ 8 колец.
Icefer
Сообщения: 1333
Зарегистрирован: 10 июл 2019, 22:38
Станция метро: Морской Фасад

Re: Путиловская

Сообщение Icefer »

Там же: ЛСТ 150 колец, ПСТ 21 кольцо.
Аватара пользователя
dts78spb
Сообщения: 153
Зарегистрирован: 17 авг 2018, 08:45
Станция метро: Автово

Re: Путиловская

Сообщение dts78spb »

МССС объявил конкурс на поставку колец обделки.
Один из лотов № 4 - Поставка колец чугунной обделки Ø 10,5 м.
Срок подачи заявок 21.09.2021. В проекте договора поставка начиная с Октября, по 30 колец в месяц.
Вложения
Лот №4_Приложение_Страница_01.jpg
Проект договора_Лот №4_Страница_13.jpg
lonesome
Сообщения: 206
Зарегистрирован: 09 фев 2017, 15:02
Станция метро: Брестская

Re: Путиловская

Сообщение lonesome »

А морозить начали уже?
Аватара пользователя
dts78spb
Сообщения: 153
Зарегистрирован: 17 авг 2018, 08:45
Станция метро: Автово

Re: Путиловская

Сообщение dts78spb »

lonesome писал(а):А морозить начали уже?

в40 писал(а):Пока не будут решены финансовые вопросы (закупка чугунных тюбингов для проходки всего н/х) - заморозка грунта не начнётся.
lonesome
Сообщения: 206
Зарегистрирован: 09 фев 2017, 15:02
Станция метро: Брестская

Re: Путиловская

Сообщение lonesome »

А что есть "решение финансовых вопросов"?
Конкурс без решения финансовых вопросов объявить можно?
А договор заключить?
А накладную подписать?
А оплатить?
А строителям передать?

В каком месть можно начать морозить?
Ответить

Вернуться в «Строительство и проектирование»