тот проект бизнес-центра, который выкладывался на форуме, заметно симпатичней... это же - просто бетонная коробка...Василеостровская
- darkglare
- Сообщения: 2146
- Зарегистрирован: 26 ноя 2006, 07:31
- Станция метро: Автово
- Откуда: Питер
Re: Василеостровская
страх какой...
тот проект бизнес-центра, который выкладывался на форуме, заметно симпатичней... это же - просто бетонная коробка...
тот проект бизнес-центра, который выкладывался на форуме, заметно симпатичней... это же - просто бетонная коробка...-
tu2-167
- Человек и паровоз
- Сообщения: 3430
- Зарегистрирован: 26 май 2004, 23:12
- Откуда: Город Герой - Ленинград
- Контактная информация:
Re: Василеостровская
Это не страх. Это такая же безликая архитектура, что и сейчас. Те самые стеклянно-бетонные коробки, которые вам так нравятся. А тогда, в 60-х и 70-х многим людям (по большей части из провинции) эти постройки казались верхом архитектурной мысли, избавленной от "излишнего украшательства". Таких "родимых пятен" в исторической части города полно. Сейчас застраиваются новыми "шедеврами" оставшиеся зелёные лакуны, а спустя уже 20 лет горожане будут глядеть на них и говорить о том, как можно было построить такую безвкусицу...
Конечно, есть удачные примеры той и нынешней архитектуры, которые и мне очень нравятся, но все они находятся в новых районах и по большей части это спортивные сооружения.
Конечно, есть удачные примеры той и нынешней архитектуры, которые и мне очень нравятся, но все они находятся в новых районах и по большей части это спортивные сооружения.
- EvgeniyAnd
- Сообщения: 305
- Зарегистрирован: 24 фев 2008, 21:43
- Станция метро: Невский Проспект
- Откуда: СПб
Re: Василеостровская
мЕтрофанушка писал(а):leick писал(а):с баша:
xxx: Захожу сейчас в вагон метро, объявление "Следующая станция Василеостровская. Внимание! Некоторые двери в некоторых вагонах не открываются!"
xxx: Питерская рулетка, млин...
Это так и записали, что ли??
Примерно так:
И немного для истории. В ночь с четверга на пятницу на станции восстановили рекламные шиты около эскалатора, закрывавшегося летом на ремонт. До этой недели в течении двух месяцев на их месте стояли только железные огрызки стоек чуть больше метра высотой.
Вообще я мирный, но Крестовский остров не прощу!
- Дем
- Сообщения: 646
- Зарегистрирован: 07 июн 2006, 09:26
- Откуда: Питер
Re: Василеостровская
А объявление изменили 
Это теперь "в связи ...", а раньше было именно как в цитате...

Это теперь "в связи ...", а раньше было именно как в цитате...
- tura8
- Сообщения: 273
- Зарегистрирован: 08 дек 2008, 23:38
- last_fm: пассажир
- Станция метро: Новокрестовская-1
- Откуда: Санкт-Петербург
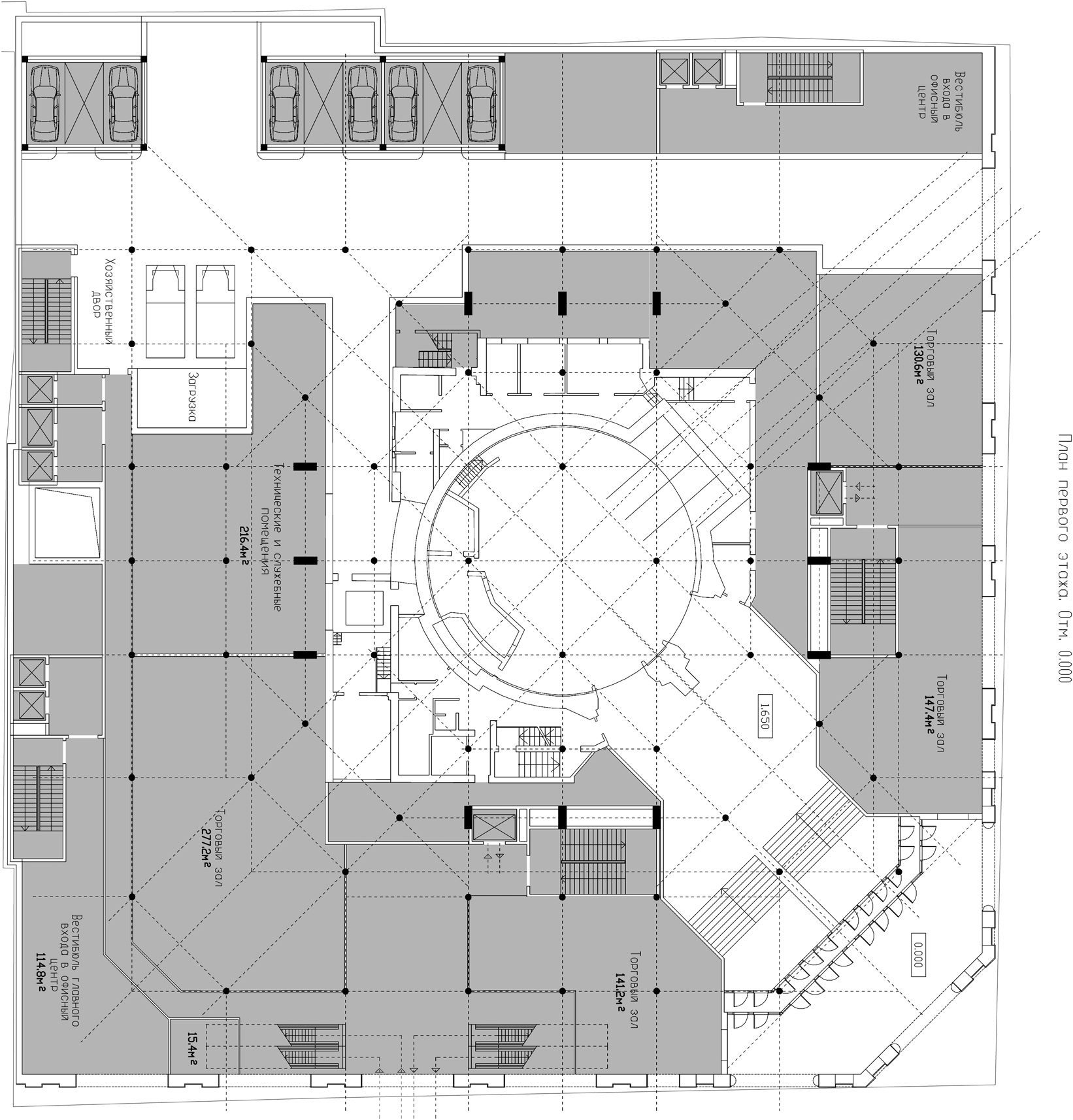
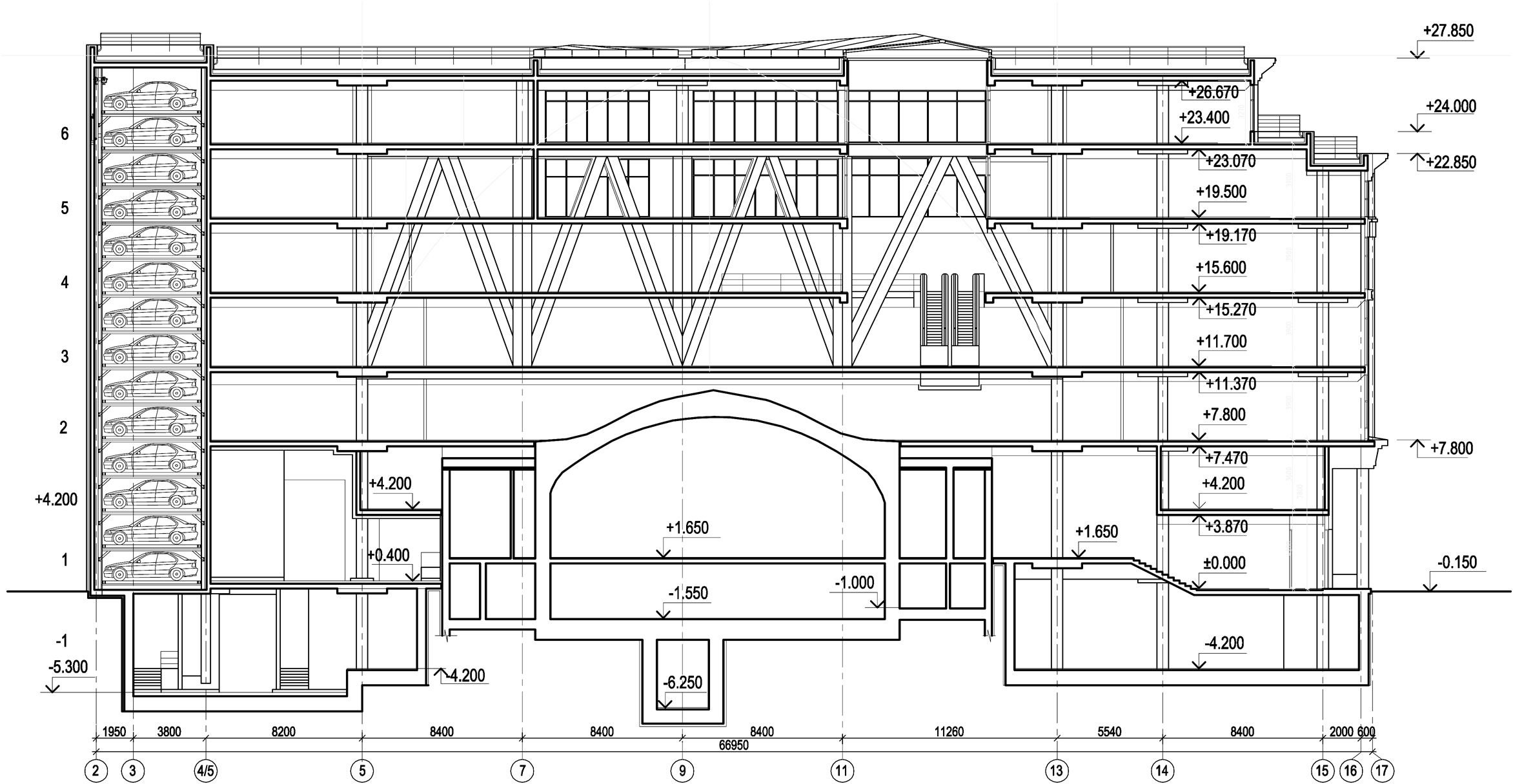
подвижки в проекте наземного вестибюля
Ну что, форумчане! скоро на Василеостровской будет тесно не только внизу, но и наверху!
Застройщик намерен выжать все квадратные метры и занять участок СТРОГО по линиям фасадов примыкающих домов.
Проектировщик пытается уломать Заказчика хотя бы на скошенный угол
Застройщик намерен выжать все квадратные метры и занять участок СТРОГО по линиям фасадов примыкающих домов.
Проектировщик пытается уломать Заказчика хотя бы на скошенный угол

"...Пророем дерзостные своды!" (А.С.Пушкин)
-
tu2-167
- Человек и паровоз
- Сообщения: 3430
- Зарегистрирован: 26 май 2004, 23:12
- Откуда: Город Герой - Ленинград
- Контактная информация:
Re: Василеостровская
Хо-хо-хо.. Маразм цветёт и пахнет.
Хотя, кто знает почему не построили здание тогда.. в 60-х..
Хотя, кто знает почему не построили здание тогда.. в 60-х..
- kot
- Профессионал

- Сообщения: 8284
- Зарегистрирован: 21 июл 2007, 17:39
- Станция метро: Озерки
- Откуда: издалека
- в40
- Профессионал

- Сообщения: 14816
- Зарегистрирован: 05 фев 2009, 19:46
- Станция метро: Проспект Большевиков
- Откуда: Дачное
Re: Василеостровская
Вы не находите некую схожесть с домом на углу Кирпичного и Малой Морской?
На мой взгляд, угол Среднего и 7 линии требует завершения, но если здание построить по продолжению линии фасадов, то места перед вестибюлем практически не остаётся. Здесь просится некая аналогия с вестибюлем "Лиговского проспекта" - здание отодвинутое вглубь. И желательно поменьше стекла...
На мой взгляд, угол Среднего и 7 линии требует завершения, но если здание построить по продолжению линии фасадов, то места перед вестибюлем практически не остаётся. Здесь просится некая аналогия с вестибюлем "Лиговского проспекта" - здание отодвинутое вглубь. И желательно поменьше стекла...
О=О=О=О=О=О=О=О=О=О=О=О=О=О=О=О=О=О=О
- tura8
- Сообщения: 273
- Зарегистрирован: 08 дек 2008, 23:38
- last_fm: пассажир
- Станция метро: Новокрестовская-1
- Откуда: Санкт-Петербург
Re: Василеостровская
По архитектуре похоже на Владимирскую.
Да, застраивать точно по красным линиям - это зверство. Тротуар Среднего узок.
Сейчас там остановочные павильоны. Если на остановке также будут парковаться маршрутки и авто в две полосы, то ППЦъ полный.
Не говоря уже о таком значимом месте, как Василеостровская, которое окажется в узком проходе.
Как минимум надо открытые галереи первого этажа делать, а лучше подвинуть эту громадину.
На Адмиралтейской историческое здание воссоздаётся, а тут НОВОЕ строительство и так ценично....
В метро будет вести коридор с угла. Три эскалатора и зал останутся без изменений. КУПОЛ ОСТАЁТСЯ.
Подробности в понедельник.
Да, застраивать точно по красным линиям - это зверство. Тротуар Среднего узок.
Сейчас там остановочные павильоны. Если на остановке также будут парковаться маршрутки и авто в две полосы, то ППЦъ полный.
Не говоря уже о таком значимом месте, как Василеостровская, которое окажется в узком проходе.
Как минимум надо открытые галереи первого этажа делать, а лучше подвинуть эту громадину.
На Адмиралтейской историческое здание воссоздаётся, а тут НОВОЕ строительство и так ценично....
В метро будет вести коридор с угла. Три эскалатора и зал останутся без изменений. КУПОЛ ОСТАЁТСЯ.
Подробности в понедельник.
Последний раз редактировалось tura8 07 ноя 2009, 19:42, всего редактировалось 1 раз.
"...Пророем дерзостные своды!" (А.С.Пушкин)
- kot
- Профессионал

- Сообщения: 8284
- Зарегистрирован: 21 июл 2007, 17:39
- Станция метро: Озерки
- Откуда: издалека
Re: Василеостровская
Кассовый зал очень тесный. Надо избавляться от купола.,
Если не знаешь, что делать - не делай ничего.
- Florstein
- Сообщения: 2886
- Зарегистрирован: 03 окт 2005, 18:03
- Станция метро: Проспект Ветеранов
- telegram: https://t.me/wikiphotospace
Re: Василеостровская
Ой, нет... Васильевский остров и так здорово испоганен уродливыми новостройками, как советского периода, так и сегодняшними. Не хватает ещё и на Среднем такую вот дуру впритык к фасадной линии, чтобы остался метр тротуара. Да ещё гранитную с огромными окнами и стеклянной мансардой.
Тут нужен классический стиль, и, как сказал в40 и заметил tura8, делать значительный отступ от проезжей части, или хотя бы аркаду, которая помогла бы разгрузить пасспоток и дать проспекту воздуха. Само здание должно быть как можно скромнее, не выступать за средние высоты; с обычной штукатуркой, никакого ублюднического сайдинга и зеркальных окон...
Ёлки-палки, но что же толку говорить-то - всё равно сделают очередную торгово-офисную дуру.
Хотя и надо бы когда-то остановиться, либо от города совсем ничего не останется: то, что сейчас строится в центре, вместо старых домов - удивительная умопомрачительная бездарность в большинстве своём.
А уж строить гигантское здание над крохотным вестибюлем, не разбирая его - это хронический постриг капусты. Хотят взять всё, ничего не давая взамен.
Тут нужен классический стиль, и, как сказал в40 и заметил tura8, делать значительный отступ от проезжей части, или хотя бы аркаду, которая помогла бы разгрузить пасспоток и дать проспекту воздуха. Само здание должно быть как можно скромнее, не выступать за средние высоты; с обычной штукатуркой, никакого ублюднического сайдинга и зеркальных окон...
Ёлки-палки, но что же толку говорить-то - всё равно сделают очередную торгово-офисную дуру.
Хотя и надо бы когда-то остановиться, либо от города совсем ничего не останется: то, что сейчас строится в центре, вместо старых домов - удивительная умопомрачительная бездарность в большинстве своём.
А уж строить гигантское здание над крохотным вестибюлем, не разбирая его - это хронический постриг капусты. Хотят взять всё, ничего не давая взамен.
- Михаил
- Сообщения: 4333
- Зарегистрирован: 17 май 2004, 10:20
- Станция метро: Лиговский Проспект-2
- Откуда: Питер
Re: Василеостровская
Поддерживаю идею с аркадой, причем как со стороны Среднего, так и со стороны 6-ой линии - без нее будет полный абзац.
- tura8
- Сообщения: 273
- Зарегистрирован: 08 дек 2008, 23:38
- last_fm: пассажир
- Станция метро: Новокрестовская-1
- Откуда: Санкт-Петербург
-
tu2-167
- Человек и паровоз
- Сообщения: 3430
- Зарегистрирован: 26 май 2004, 23:12
- Откуда: Город Герой - Ленинград
- Контактная информация:
Re: Василеостровская
Совершенно идиотская мансарда. Надеюсь, что не прокатить по высотному регламенту.
Тротуарам пинцет. На время придётся закрыть Средний? Ведь над наклонником они хотят строить, а это значит, что там будет что-то в виде моста сооружаться и свайное поле однозначно "выползет" на границу красной линии, а значит без закрытия движения не обойтись.
Ну когда в этом городе перестанут править бабки и начнёт работать здравый смысл?
Тротуарам пинцет. На время придётся закрыть Средний? Ведь над наклонником они хотят строить, а это значит, что там будет что-то в виде моста сооружаться и свайное поле однозначно "выползет" на границу красной линии, а значит без закрытия движения не обойтись.
Ну когда в этом городе перестанут править бабки и начнёт работать здравый смысл?
- tura8
- Сообщения: 273
- Зарегистрирован: 08 дек 2008, 23:38
- last_fm: пассажир
- Станция метро: Новокрестовская-1
- Откуда: Санкт-Петербург