Горный институт (проектное название "Большой проспект")
Модератор: Nomernoy
- karhu
- Сообщения: 3938
- Зарегистрирован: 31 дек 2008, 19:14
- Станция метро: Василеостровская
- Откуда: Санкт-Петербург
Re: Горный институт (проектное название "Большой проспект")
Нет, рассечка - часть конструкции ствола.
Хотя сам монолитный ствол - да, заканчивается на 60 метрах, кроме того рассечка и ствол выделены в разные временные отрезки.
Кроме того под стволом будет зумпф, который тоже можно считать конструкцией ствола.
Короче, спорный у Вас вопрос.
Хотя сам монолитный ствол - да, заканчивается на 60 метрах, кроме того рассечка и ствол выделены в разные временные отрезки.
Кроме того под стволом будет зумпф, который тоже можно считать конструкцией ствола.
Короче, спорный у Вас вопрос.
"Ключик на 60 дайте, пожалуйста".
- в40
- Профессионал

- Сообщения: 14816
- Зарегистрирован: 05 фев 2009, 19:46
- Станция метро: Проспект Большевиков
- Откуда: Дачное
Re: Горный институт (проектное название "Большой проспект")
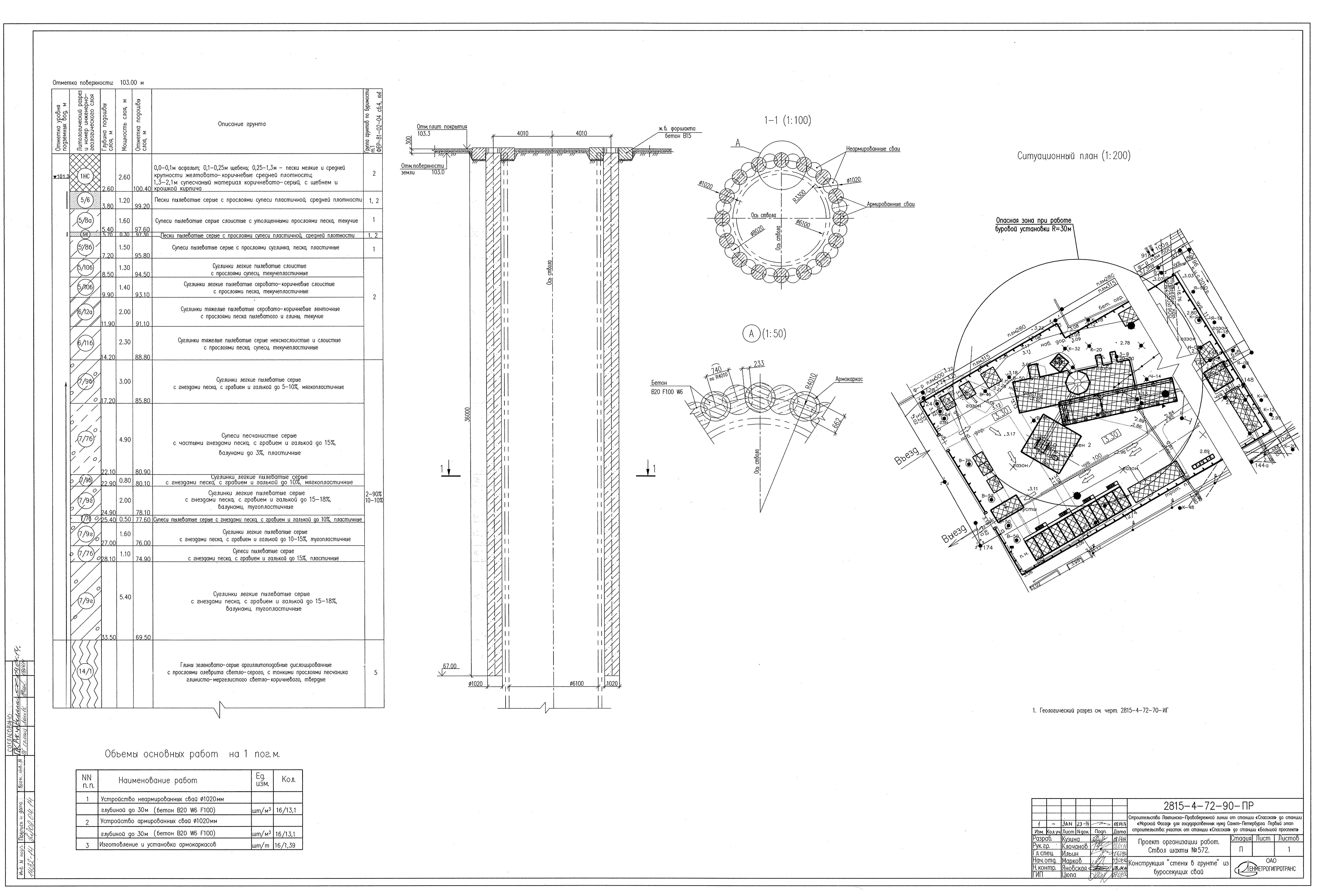
572-й и 467-й стволы - близнецы братья (только 572-й чуть покороче). Конструкцию 467 ствола можно посмотреть в теме по НВЛ.
О=О=О=О=О=О=О=О=О=О=О=О=О=О=О=О=О=О=О
- karhu
- Сообщения: 3938
- Зарегистрирован: 31 дек 2008, 19:14
- Станция метро: Василеостровская
- Откуда: Санкт-Петербург
Re: Горный институт (проектное название "Большой проспект")
По сути - да.
Только ещё различаются технологии сооружения ограждающих конструкций - БСС(572) против СВГ(467).
Не помню только, будет ли на 572 ВВУ.
Только ещё различаются технологии сооружения ограждающих конструкций - БСС(572) против СВГ(467).
Не помню только, будет ли на 572 ВВУ.
"Ключик на 60 дайте, пожалуйста".
- в40
- Профессионал

- Сообщения: 14816
- Зарегистрирован: 05 фев 2009, 19:46
- Станция метро: Проспект Большевиков
- Откуда: Дачное
Re: Горный институт (проектное название "Большой проспект")
Будет. В том числе - и эваковыход.
Из-за этого и диаметр ствола увеличен (для возможности размещения лестничных маршей).
Из-за этого и диаметр ствола увеличен (для возможности размещения лестничных маршей).
О=О=О=О=О=О=О=О=О=О=О=О=О=О=О=О=О=О=О
- mx
- Профессионал

- Сообщения: 4139
- Зарегистрирован: 14 сен 2005, 21:32
- Станция метро: -------
- Откуда: 59`50N 30`25E
Re: Горный институт (проектное название "Большой проспект")
Проект строительства
Всё потому, что кто-то слишком много ест!
-
Vasya
- Сообщения: 309
- Зарегистрирован: 16 фев 2012, 21:10
- Станция метро: Автово
Re: Горный институт (проектное название "Большой проспект")
Спасибо за схему!
Можно пару вопросов?
Из-за чего нельзя раскрывать противоположные и смежные проемы?
Почему выбрана именно такая конфигурация эвакуационных ходков?
Если бы эвакуационных ходок №1 (16) продлили бы чуть левее и соединили с подходным тоннелем (5) левее ответвления от пути №2, то строительство эвакуационного ходка №2 (24) не потребовалось; забутовывать подходной тоннель (5) пришлось бы только на небольшом участке от эвакуационного ходка №1 (16) (в моем варианте) до пути №2. По-делитенски кажется, что так проще.
Интересно, почему спроектировано именно так, в чем причина более сложной конфигурации тоннелей?
Можно пару вопросов?
16. Раскрытие проемов выполняется после проходки всех трех станционных тоннелей в шахматном порядке через один. Не допускается встрывать одновременно два противоположных проема и смежные проемы.
Из-за чего нельзя раскрывать противоположные и смежные проемы?
22. Забучивается подходной тоннель №1 (5) и временный технологический ходок №2 (14).
Почему выбрана именно такая конфигурация эвакуационных ходков?
Если бы эвакуационных ходок №1 (16) продлили бы чуть левее и соединили с подходным тоннелем (5) левее ответвления от пути №2, то строительство эвакуационного ходка №2 (24) не потребовалось; забутовывать подходной тоннель (5) пришлось бы только на небольшом участке от эвакуационного ходка №1 (16) (в моем варианте) до пути №2. По-делитенски кажется, что так проще.
Интересно, почему спроектировано именно так, в чем причина более сложной конфигурации тоннелей?
- mx
- Профессионал

- Сообщения: 4139
- Зарегистрирован: 14 сен 2005, 21:32
- Станция метро: -------
- Откуда: 59`50N 30`25E
Re: Горный институт (проектное название "Большой проспект")
Vasya писал(а):Из-за чего нельзя раскрывать противоположные и смежные проемы?
При раскрытии проёмов нарушается целостность обделки и возрастают нагрузки на неразобранные участки. Для равномерного распределения горного давления проёмы раскрывают в шахматном порядке.
Vasya писал(а):Почему выбрана именно такая конфигурация эвакуационных ходков?
Проектировщикам видней
Надо знать условия строительства чтобы оценить решения.Проект проходки шахты №572
Всё потому, что кто-то слишком много ест!
- andreev
- Сообщения: 2857
- Зарегистрирован: 26 июн 2009, 16:30
- Станция метро: Проспект Славы
- Откуда: Санкт-Петербург, ФПЛ
- ooo
- Сообщения: 1909
- Зарегистрирован: 15 янв 2014, 21:47
- Станция метро: Петроградская
Re: Горный институт (проектное название "Большой проспект")
макеты 2014 года, но на сайте Ленметрогипротранс их нет
не верь, не бойся, не проси
- Metrofan Zvenigo
- Сообщения: 84
- Зарегистрирован: 24 фев 2009, 22:57
- Станция метро: Знаменская
- Откуда: Санкт-Петербург
Re: Горный институт (проектное название "Большой проспект")
Если я не ошибаюсь, то верхняя картинка - это рендер вестибюля "Броневой": выдаёт ракушка на потолке...

- karhu
- Сообщения: 3938
- Зарегистрирован: 31 дек 2008, 19:14
- Станция метро: Василеостровская
- Откуда: Санкт-Петербург
Re: Горный институт (проектное название "Большой проспект")
Есть информация, что поставлено первое кольцо горизонта(руддвора).
"Ключик на 60 дайте, пожалуйста".
- McFly
- Сообщения: 308
- Зарегистрирован: 06 мар 2013, 22:55
- Станция метро: Площадь Мужества
- Откуда: Санкт-Петербург
Re: Горный институт (проектное название "Большой проспект")
Информация не подтвердилась. До первого кольца руддвора еще куча работы. Мало того, кольца пока что и собирать-то нечем.
Я такой же осёл как и вы, сэр!
- McFly
- Сообщения: 308
- Зарегистрирован: 06 мар 2013, 22:55
- Станция метро: Площадь Мужества
- Откуда: Санкт-Петербург
Re: Горный институт (проектное название "Большой проспект")
И вот только сегодня первое кольцо руддвора собрано! Осталось еще 61.
Я такой же осёл как и вы, сэр!
- в40
- Профессионал

- Сообщения: 14816
- Зарегистрирован: 05 фев 2009, 19:46
- Станция метро: Проспект Большевиков
- Откуда: Дачное
Re: Горный институт (проектное название "Большой проспект")
Какой длинный руддвор! Обычный типовой - 48 колец (36 метров).
Видимо, дополнительные 14 колец - это камера для монтажа щита.
Видимо, дополнительные 14 колец - это камера для монтажа щита.
О=О=О=О=О=О=О=О=О=О=О=О=О=О=О=О=О=О=О
- Михаил
- Сообщения: 4333
- Зарегистрирован: 17 май 2004, 10:20
- Станция метро: Лиговский Проспект-2
- Откуда: Питер
Re: Горный институт
Вы предполагаете, что щитом будут проходить подходняк?
