Дунайская (Дунайский проспект)
Модератор: Nomernoy
- koropet
- Сообщения: 186
- Зарегистрирован: 01 май 2012, 18:40
- Станция метро: Электросила
- Откуда: Санкт-Петербург
Re: Дунайская (Дунайский проспект)
Смотри проектную документацию ©
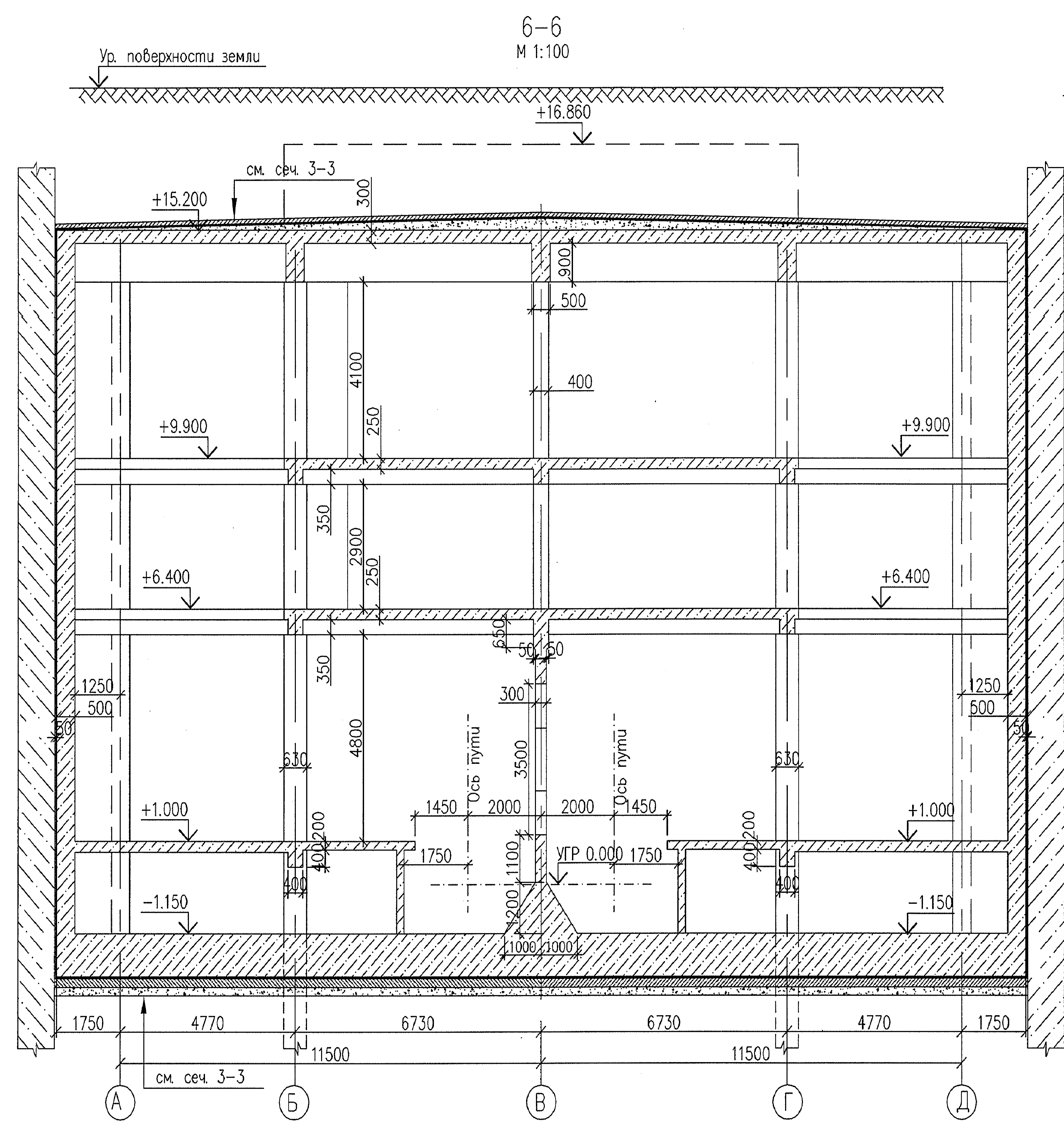
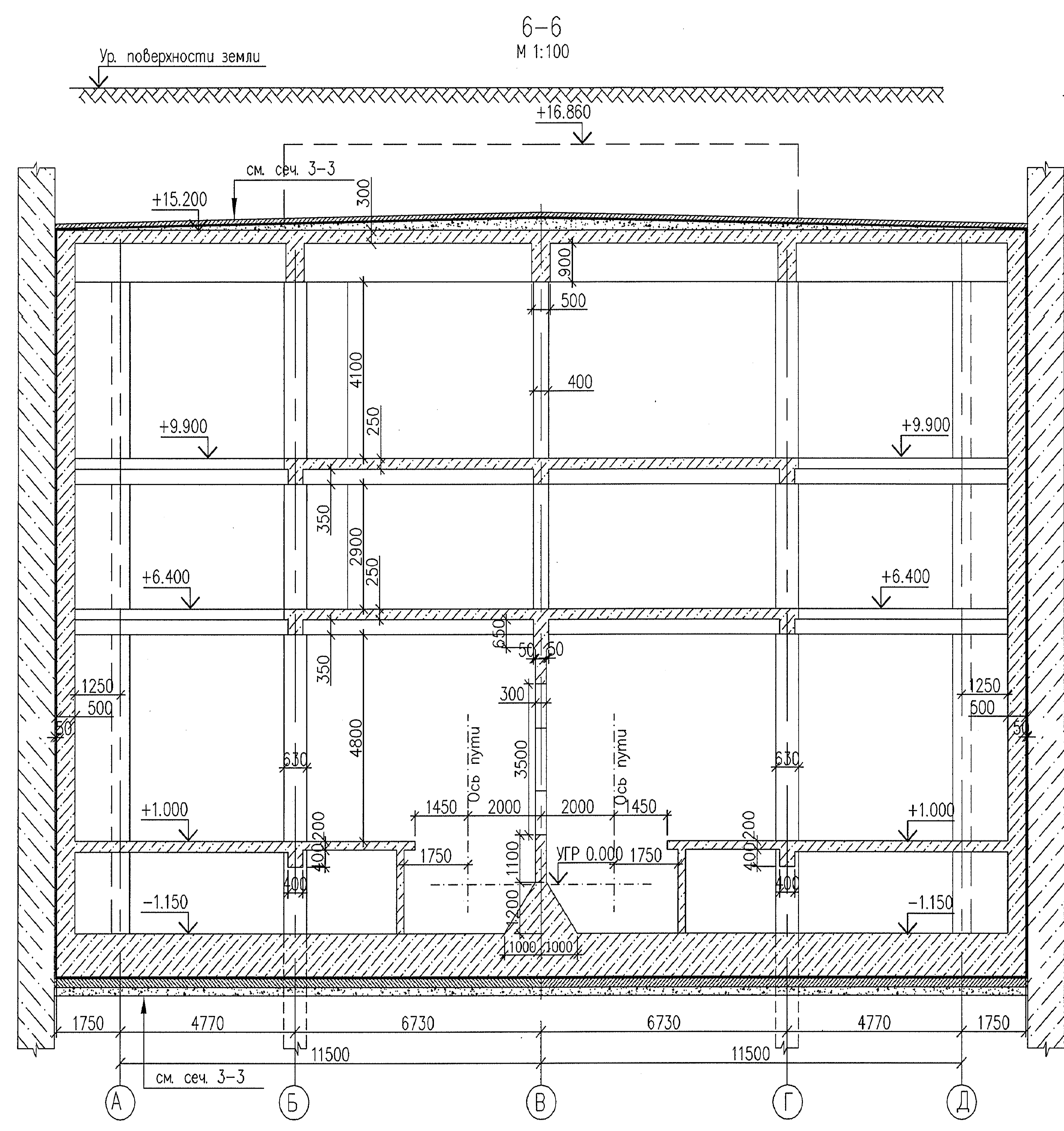
У станции вообще плоский лоток. Низ чуть больше 2м от уровня головки рельса, плюс запас на подготовку основания. По большому счету, нечего там делать временным блокам, включить их в работу как конструкции очень сложно.
У станции вообще плоский лоток. Низ чуть больше 2м от уровня головки рельса, плюс запас на подготовку основания. По большому счету, нечего там делать временным блокам, включить их в работу как конструкции очень сложно.
- Gornyi
- Сообщения: 230
- Зарегистрирован: 25 ноя 2013, 11:27
- Станция метро: Путиловская
Re: Дунайская (Дунайский проспект)
Фото-отчёт со строительства 3-х станций неглубокого заложения, в т.ч. и Дунайской - http://life-shche.livejournal.com/26126.html
- karhu
- Сообщения: 3938
- Зарегистрирован: 31 дек 2008, 19:14
- Станция метро: Василеостровская
- Откуда: Санкт-Петербург
Re: Дунайская (Дунайский проспект)
"Ключик на 60 дайте, пожалуйста".
- ooo
- Сообщения: 1909
- Зарегистрирован: 15 янв 2014, 21:47
- Станция метро: Петроградская
Re: Дунайская (Дунайский проспект)
11 фотографий от life_shche
http://life-shche.livejournal.com/31394.html
Строительство станции метро "Дунайский проспект". Сентябрь 2016
http://life-shche.livejournal.com/31394.html
Строительство станции метро "Дунайский проспект". Сентябрь 2016
не верь, не бойся, не проси
- 4pet
- Сообщения: 2674
- Зарегистрирован: 13 окт 2005, 13:59
- Станция метро: Ладожская
Re: Дунайская (Дунайский проспект)
Не слишком ли много служебных помещений? Кто там под землёй сидеть захочет? Надо торговлю развернуть)
- mx
- Профессионал

- Сообщения: 4118
- Зарегистрирован: 14 сен 2005, 21:32
- Станция метро: -------
- Откуда: 59`50N 30`25E
Re: Дунайская (Дунайский проспект)
Можно подумать в торговле не люди работают. Служебных помещений всегда не хватало, в кои-то веки сделали нормальный проект.
Всё потому, что кто-то слишком много ест!
- koropet
- Сообщения: 186
- Зарегистрирован: 01 май 2012, 18:40
- Станция метро: Электросила
- Откуда: Санкт-Петербург
Re: Дунайская (Дунайский проспект)
В задании на проектирование всегда указывается сколько и каких помещений нужно метрополитену, требования по метражу, и так далее, вплоть до отделки. И их довольно большое количество. Плюс, не забываем про кабельные коллекторы и вентиляционные каналы. В итоге, удобно целый ярус под это отвести, чтоб всем хватило.
-
SPB_Metro
Re: Дунайская (Дунайский проспект)
koropet писал(а):Плюс, не забываем про кабельные коллекторы и вентиляционные каналы. В итоге, удобно целый ярус под это отвести, чтоб всем хватило.
Извините, виноват, забыл про вентиляционных каналов, интересно, какова их ширина и высота вентиляционного канала в среднем ярусе (если он есть!)? И где будет выходная точка от станции на поверхности не говоря, о других вентиляционных шахтах? У дороги воздух плохой (автомобильные газы).
- GelezinisVilkas
- Сообщения: 3566
- Зарегистрирован: 15 май 2015, 12:19
- Станция метро: Дунайская
- Ignat
- Сообщения: 431
- Зарегистрирован: 28 окт 2010, 02:29
- last_fm: Ta6ypeTKo
- Станция метро: Большеохтинская
- Контактная информация:
Re: Дунайская (Дунайский проспект)
К вопросу о количестве служебных помещений:
- 71-153
- Сообщения: 303
- Зарегистрирован: 20 май 2007, 17:29
- Станция метро: Бухарестская
- Откуда: Санкт-Петербург
- Danyokkk
- Сообщения: 166
- Зарегистрирован: 08 июл 2009, 14:33
- Станция метро: Проспект Большевиков
Re: Дунайская (Дунайский проспект)
Правильно ли я понял по верхнему фото, что началось сооружение платформы и путевой стены (перегородки) ?
Следующая станция - Театральная ! ! !
- в40
- Профессионал

- Сообщения: 14776
- Зарегистрирован: 05 фев 2009, 19:46
- Станция метро: Проспект Большевиков
- Откуда: Дачное
Re: Дунайская (Дунайский проспект)
Да. Слева - арматурный каркас междупутной стены, справа - подплатформенной стены. Смотрим ещё раз.
О=О=О=О=О=О=О=О=О=О=О=О=О=О=О=О=О=О=О
- xxela
- Сообщения: 115
- Зарегистрирован: 22 апр 2008, 13:20
- karhu
- Сообщения: 3938
- Зарегистрирован: 31 дек 2008, 19:14
- Станция метро: Василеостровская
- Откуда: Санкт-Петербург
Re: Дунайская (Дунайский проспект)
Открытие в декабре 2017?
Не, не слышал.
Таки откроют в 2018.
Не, не слышал.
Таки откроют в 2018.
"Ключик на 60 дайте, пожалуйста".