karhu писал(а):А...так эта "стройка" к ФР-2 отношения не имеет отсюда
Точно говорю, там метрострой работает!
Вот снимок за сегодня
Модератор: Nomernoy
karhu писал(а):А...так эта "стройка" к ФР-2 отношения не имеет отсюда

exsopopugai писал(а):ствол??
в40 писал(а):Проходку ЛПТ завершили ещё в декабре. В ППТ щит по-прежнему "ржавеет" до лучших времён...
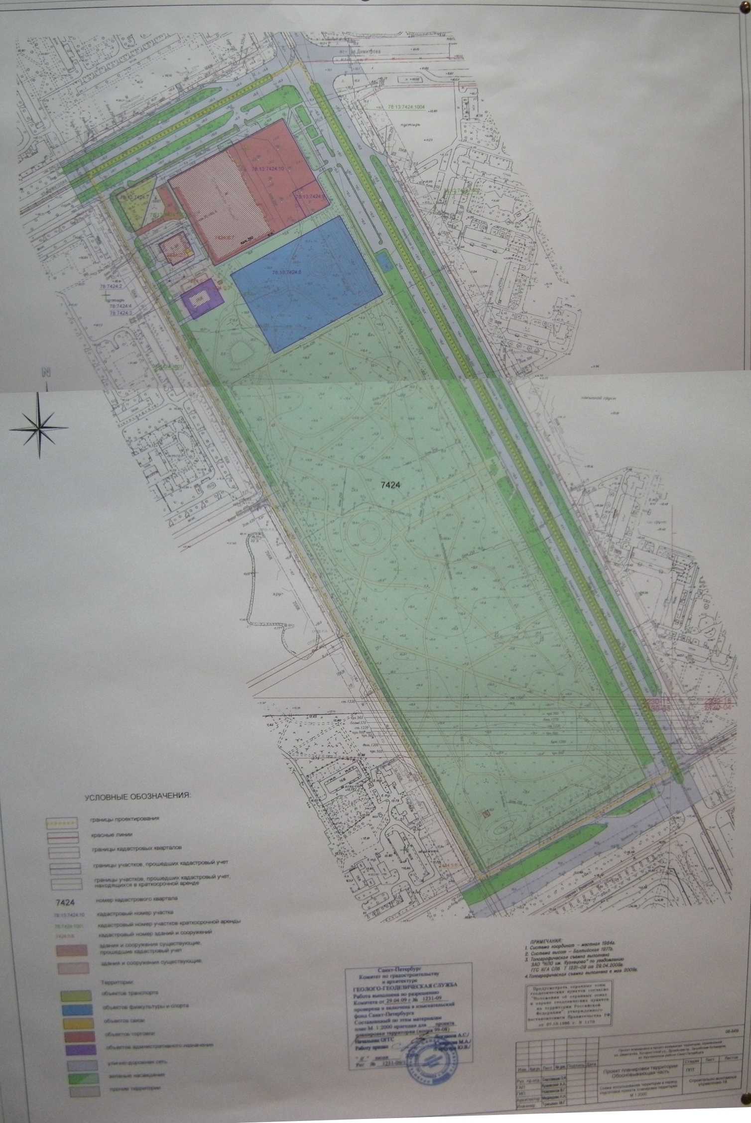
karhu писал(а):Михаил,в чём трудность? Северный выход - нижний правый угол картинки

karhu писал(а):А ну, понятно, так по-моему никто и не планировал на все 4 стороны делать, только через Бухарестскую.