Страница 27 из 91
Re: Проспект Славы
Добавлено: 05 ноя 2014, 23:01
в40
Обычное дело для наших журналамеров. У них и наземные вестибюли весьма часто становятся надземными. Так что, удивляться особо нечему.
Re: Проспект Славы
Добавлено: 08 ноя 2014, 11:43
Михаил
Обновились снимки на гугл земле. Вырезал подборочку для оценки прогресса за год.
Re: Проспект Славы
Добавлено: 11 ноя 2014, 17:12
Gleb
Стройплощадка северного вестибюля (11.11.2014 г.):
Re: Проспект Славы
Добавлено: 11 ноя 2014, 22:57
Scorpio17
Немного не по теме, никто не обратил внимания, что уровень воды в пруду, в парке Интернационалистов, был аномально высок все лето, включая не самое дождливое время. Не связано ли это со строительством, с тем, что нарушилась циркуляция грунтовых вод? Планируется ли что то предпринимать?
Re: Проспект Славы
Добавлено: 11 ноя 2014, 23:56
в40
Наоборот, этим летом уровень воды в прудах был низким (сравните со спутниковыми фото предыдущих лет). Я думаю, что это как-то зависит от количества выпавшего зимой снега. В Ладоге в этом году тоже уровень воды заметно снизился. По крайней мере, на Валааме, в сравнении с прошлым годом, это было весьма заметно.
Re: Проспект Славы
Добавлено: 12 ноя 2014, 09:45
shtchelkov
Scorpio17К вопросу о речке, прудах, и грунтовых водах. Вот перед вами снимок спутниковый 1966 года. Слева вверху - перекресток Славы и Бухарестской, строящееся здание кинотеатра "Слава" (ныне вообще не пойми что) дорога с активным движением внизу снимка - это Южное шоссе. темная полоса с изгибитостями - Волковка
http://www.kupsilla.ru/park/map66.jpgС тех пор Волковка отведена в русло вдоль железной дороги.
Re: Проспект Славы
Добавлено: 12 ноя 2014, 12:43
karhu
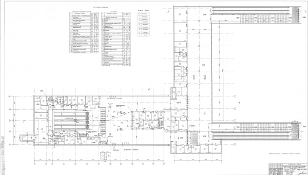
Из КД.

- Вестибюль №1

- Вестибюль №2
Re: Проспект Славы
Добавлено: 12 ноя 2014, 20:22
Scorpio17
Я 40 лет в этом районе живу, знаю я какой уровень воды в пруду безо всяких спутниковых снимков. Деревья подтоплены, у бывшей купальни, лодочной станции, вода чуть ли не на дорожку переливается. Изменения явные и я не думаю, что это связано с дождями. Их летом было не так уж и много. То что русло изменили ни о чем не говорит, на месте старого русла осталась система прудов, значит какое то сообщение под землей, на уровне грунтовых вод могло остаться. Сейчас, в связи со строительством, считай плотину возвели, такое складывается ощущение, поэтому и стало больше воды в пруду.
Re: Проспект Славы
Добавлено: 12 ноя 2014, 23:09
в40
Scorpio17 писал(а):Сейчас, в связи со строительством, считай плотину возвели, такое складывается ощущение, поэтому и стало больше воды в пруду.
Не говорите ерунду. После того, как в конце 60-х годов русло Волковки было засыпано в нескольких местах, уровень воды зависит только от количества выпавших осадков (поверхностный сток и подпитка родниками) и испарения воды с поверхности прудов.
Сравните, наконец, границы зеркал воды в
этом сообщении (два верхних снимка от 17.07.14 и от 20.09.14) и найдите разницу в уровнях.
Re: Проспект Славы
Добавлено: 13 ноя 2014, 21:23
в40
mx писал(а):Сделали руддвор №1 и ходок из него к 1-му пути? Сколько осталось на втором наклоне до сбойки с натяжной?
Руддвор №1 прошли, ходок ещё не начинали.
До конца месяца должны закончить проходку второго наклонного хода: до сбойки с натяжной камерой осталось 10 колец.
Re: Проспект Славы
Добавлено: 13 ноя 2014, 22:12
mx
Ну что ж, всё хорошо

Спасибо за добрые вести.
Re: Проспект Славы
Добавлено: 14 ноя 2014, 13:14
Gleb
Строительная площадка северного вестибюля (14.11.2014 г.):
Re: Проспект Славы
Добавлено: 14 ноя 2014, 18:38
Gleb
На схеме вестибюля №2
download/file.php?id=31106&mode=view указаны места возможных выходов к трамвайным путям.
Я правильно понимаю, что они построены вместе с вестибюлем не будут (также как и подземные переходы под ул. Бухарестская на ст. "Дунайский пр."), а это только задел на будущее?
Re: Проспект Славы
Добавлено: 14 ноя 2014, 19:26
Almak
Тоже заметил этот момент. А ведь здесь, при устройстве выходов к трамваям, можно убрать светофор. А у НХ к пр. Славы таких выходов даже в перспективном варианте нет, хотя сообщалось о переносе остановок трамвая к этому выходу.
Re: Проспект Славы
Добавлено: 14 ноя 2014, 23:02
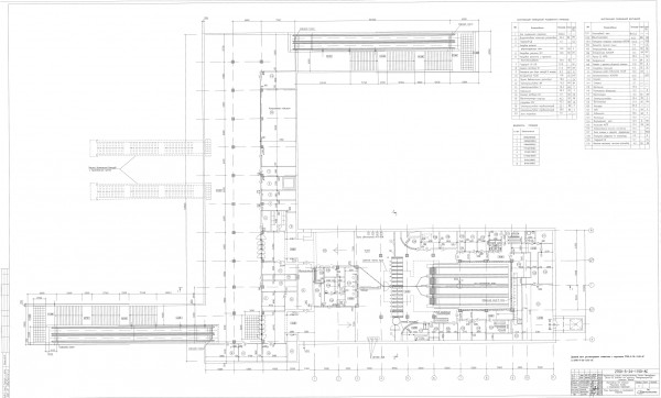
Михаил
Посмотрел чертежи выходов. Что бросилось в глаза - приличное пересечение потоков на восточных выходах. Те, кто выходит из метро и садится на подъем на траволатор будет пересекать спускающихся по лестнице. Неужели нельзя было траволаторы с лестницей местами поменять?
И на мой взгляд достаточно абсурдно выглядит станция с 6-ю проемами в центральном зале и 2-мя наклонниками по 4 эскалатора... Пассажиропоток на станции скорее всего будет не больше, чем сейчас на Международной, а с ним 6-ти проемов будет достаточно. Тогда зачем 2 наклона по 4 эскалатора? По-моему, наши нормы немного некорректны. При одновременном строительстве 2-х наклонов можно было запроектировать их 3-х эскалаторными.