Юго-Западная (Казаковская)
Модератор: Nomernoy
- TheSeaWind
- Сообщения: 336
- Зарегистрирован: 28 июн 2022, 14:52
- Станция метро: Балтийская Жемчужина
- Откуда: Улица Маршала Захарова
- KarlUlrich
- Сообщения: 104
- Зарегистрирован: 27 июн 2022, 10:16
- Станция метро: Площадь Восстания
Re: Юго-Западная (Казаковская)
Подземник наконец то опубликовал новый пост, из нового:
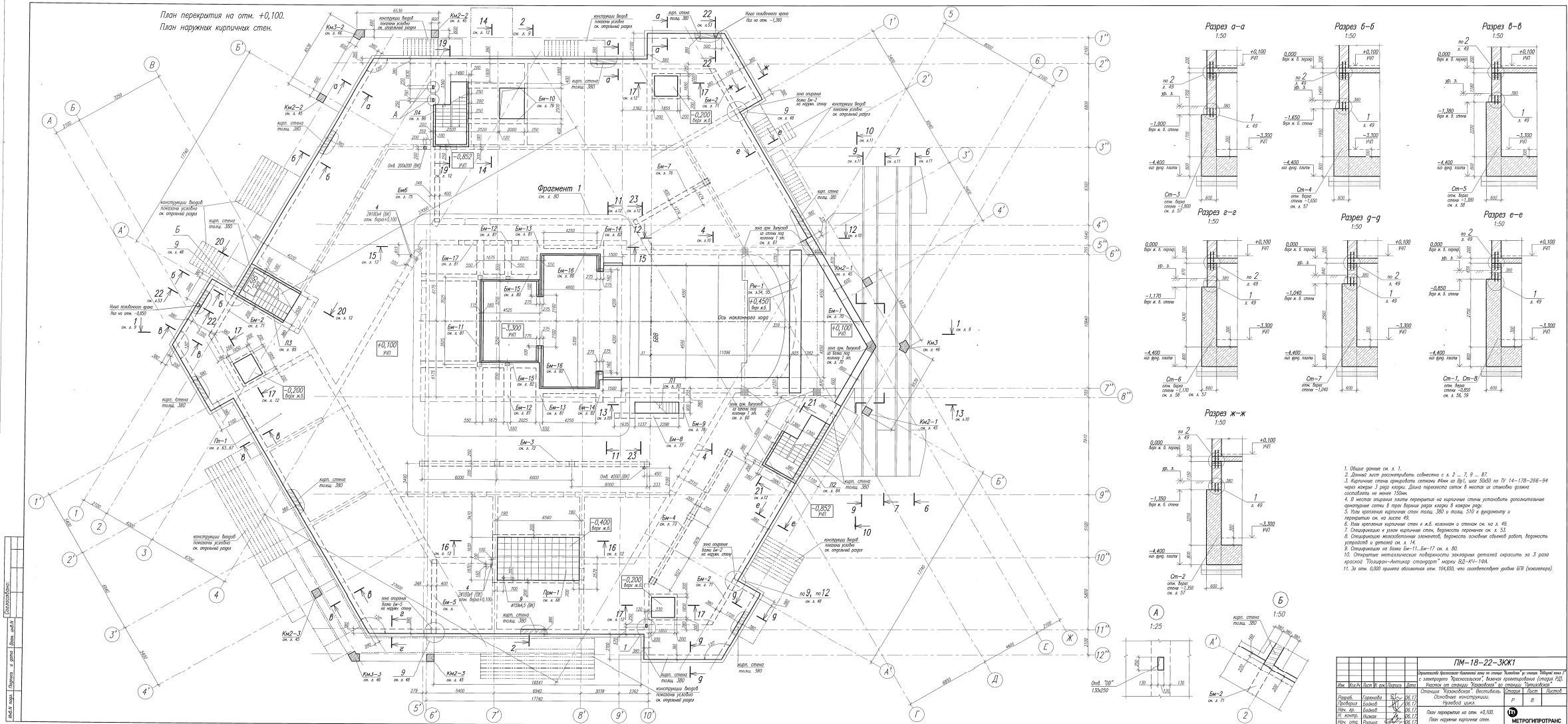
На станции «Казаковская» строительства Красносельско-Калининской (шестой, коричневой) линии Петербургского метрополитена завершается сооружение камеры местной водоотливной установки (МВУ).
С момента предыдущего поста (середины сентября 2022) метростроители разработали грунт на месте обратного свода и забетонировали обратный свод и зумпфы водосборников.
На станции «Казаковская» строительства Красносельско-Калининской (шестой, коричневой) линии Петербургского метрополитена завершается сооружение камеры местной водоотливной установки (МВУ).
С момента предыдущего поста (середины сентября 2022) метростроители разработали грунт на месте обратного свода и забетонировали обратный свод и зумпфы водосборников.
- TheSeaWind
- Сообщения: 336
- Зарегистрирован: 28 июн 2022, 14:52
- Станция метро: Балтийская Жемчужина
- Откуда: Улица Маршала Захарова
Re: Юго-Западная (Казаковская)
Выполнение комплекса работ по устройству шпунтового ограждения котлована, земляных работ и устройству свай станции «Казаковская»
Федеральное финансирование Петербургскому метрополитену!
- GelezinisVilkas
- Сообщения: 3569
- Зарегистрирован: 15 май 2015, 12:19
- Станция метро: Дунайская
- в40
- Профессионал

- Сообщения: 14776
- Зарегистрирован: 05 фев 2009, 19:46
- Станция метро: Проспект Большевиков
- Откуда: Дачное
Re: Юго-Западная (Казаковская)
Если не затруднит, объясните, пожалуйста, на чём основаны Ваши выводы?
ЗЫ: строители - строят, то запроектировано проектантами и выдано в работу заказчиком.
ЗЗЫ: заказчик, как я понимаю, вообще не при делах?
ЗЫ: строители - строят, то запроектировано проектантами и выдано в работу заказчиком.
ЗЗЫ: заказчик, как я понимаю, вообще не при делах?
О=О=О=О=О=О=О=О=О=О=О=О=О=О=О=О=О=О=О
- Metroschemes
- Сообщения: 6497
- Зарегистрирован: 22 окт 2005, 04:19
- last_fm: Metroschemes
- Станция метро: Парнас
- Откуда: Питер
- Контактная информация:
Re: Юго-Западная (Казаковская)
Чем расположение входов и выходов напротив наелонного хода удобнее, чем сбоку например? Полно таких примеров, неудобство не замечено!
Всего за месяц ЗЕНИТ взял три трофея и одну станцию метро!
Заходите на мой сайт: Схема метро - История метрополитенов в схемах!
Заходите на мой сайт: Схема метро - История метрополитенов в схемах!
-
jangolen
- Сообщения: 161
- Зарегистрирован: 11 май 2009, 20:35
- Станция метро: Юго-Западная
Re: Юго-Западная (Казаковская)
А если наложить на местность с остановками ОТ, то у строителей вариант правильный.
Верните Доблести!
- GelezinisVilkas
- Сообщения: 3569
- Зарегистрирован: 15 май 2015, 12:19
- Станция метро: Дунайская
Re: Юго-Западная (Казаковская)
Смотря относительно каких остановок. Относительно более потенциально популярной трамвайной, так нет.
Так, а по чьему проекту таки будет построен вестибюль?
Так, а по чьему проекту таки будет построен вестибюль?
- в40
- Профессионал

- Сообщения: 14776
- Зарегистрирован: 05 фев 2009, 19:46
- Станция метро: Проспект Большевиков
- Откуда: Дачное
-
subwaycat
- Сообщения: 82
- Зарегистрирован: 07 ноя 2020, 10:32
- Станция метро: Юго-Западная
Re: Юго-Западная (Казаковская)
Довольно наглядная прогулка-интервью с проходчиком на канале PRO МЕТРО:
https://www.youtube.com/watch?v=SX2Vmuxx5-4
https://www.youtube.com/watch?v=SX2Vmuxx5-4
-
Cypok
- Сообщения: 1846
- Зарегистрирован: 29 мар 2006, 15:52
- Контактная информация:
Re: Юго-Западная (Казаковская)
Подземник новый пост выкатил про "Юго-Западную": https://t.me/podzemnik_spb/506.
Ну так сразу и не скажешь... да и вообще не люблю о себе говорить... скромный видно...
-
jangolen
- Сообщения: 161
- Зарегистрирован: 11 май 2009, 20:35
- Станция метро: Юго-Западная
- TheSeaWind
- Сообщения: 336
- Зарегистрирован: 28 июн 2022, 14:52
- Станция метро: Балтийская Жемчужина
- Откуда: Улица Маршала Захарова
Re: Юго-Западная (Казаковская)
Значит нулевой цикл на подходе скоро, а в следующим году и монолитные этажи увидим. Интересно сколько прошли колец тупиковых тоннелей и какое состояние ГКС в процессе работ
Федеральное финансирование Петербургскому метрополитену!
- ArtTrapeza
- Сообщения: 828
- Зарегистрирован: 30 дек 2006, 11:56
- Станция метро: Проспект Просвещения
Re: Юго-Западная (Казаковская)
Поясните, пожалуйста, фотографию! А то я разглядел только автокран на площадке вестибюля.
-
Чау-чау
- Сообщения: 2589
- Зарегистрирован: 26 ноя 2011, 19:20
- Станция метро: Шкиперская
Re: Юго-Западная (Казаковская)
Загоняют шпунт по периметру котлована под вестибюль.