Новокрестовская
Модератор: Nomernoy
- mx
- Профессионал

- Сообщения: 4138
- Зарегистрирован: 14 сен 2005, 21:32
- Станция метро: -------
- Откуда: 59`50N 30`25E
Re: Новокрестовская
Действительно, не обратил внимания. Примерно понятно, хотя это просто визуализация и реально может быть по другому. На "Новокрестовскую" не похожа, нет второго ряда колонн.
Всё потому, что кто-то слишком много ест!
- Curiosity
- Сообщения: 156
- Зарегистрирован: 12 мар 2016, 21:28
- Станция метро: Спортивная-2
Re: Новокрестовская
MetroGnom писал(а):Господи, а почему всё такое мрачное? Мне (да и не только) негатива итак с избытком. Хочется чего-то приятного, светлого.
З.Ы. Обрадуйте, скажите что это просто так некачественно передано...
Есть визуализация повеселее:
Источник:https://www.instagram.com/p/BAOb2abEx_f/
- zet
- Сообщения: 1949
- Зарегистрирован: 21 окт 2006, 21:23
- last_fm: vovka307
- Станция метро: Комендантский Проспект
- Откуда: Санкт-Петербург
Re: Новокрестовская
Небольшой сюжет от Метростроя о выходе щита на станцию:
- Пумяух2
- Сообщения: 219
- Зарегистрирован: 06 фев 2016, 21:09
- Станция метро: Ульянка
Re: Новокрестовская
А тема футбола так и не раскрыта.
- mx
- Профессионал

- Сообщения: 4138
- Зарегистрирован: 14 сен 2005, 21:32
- Станция метро: -------
- Откуда: 59`50N 30`25E
Re: Новокрестовская
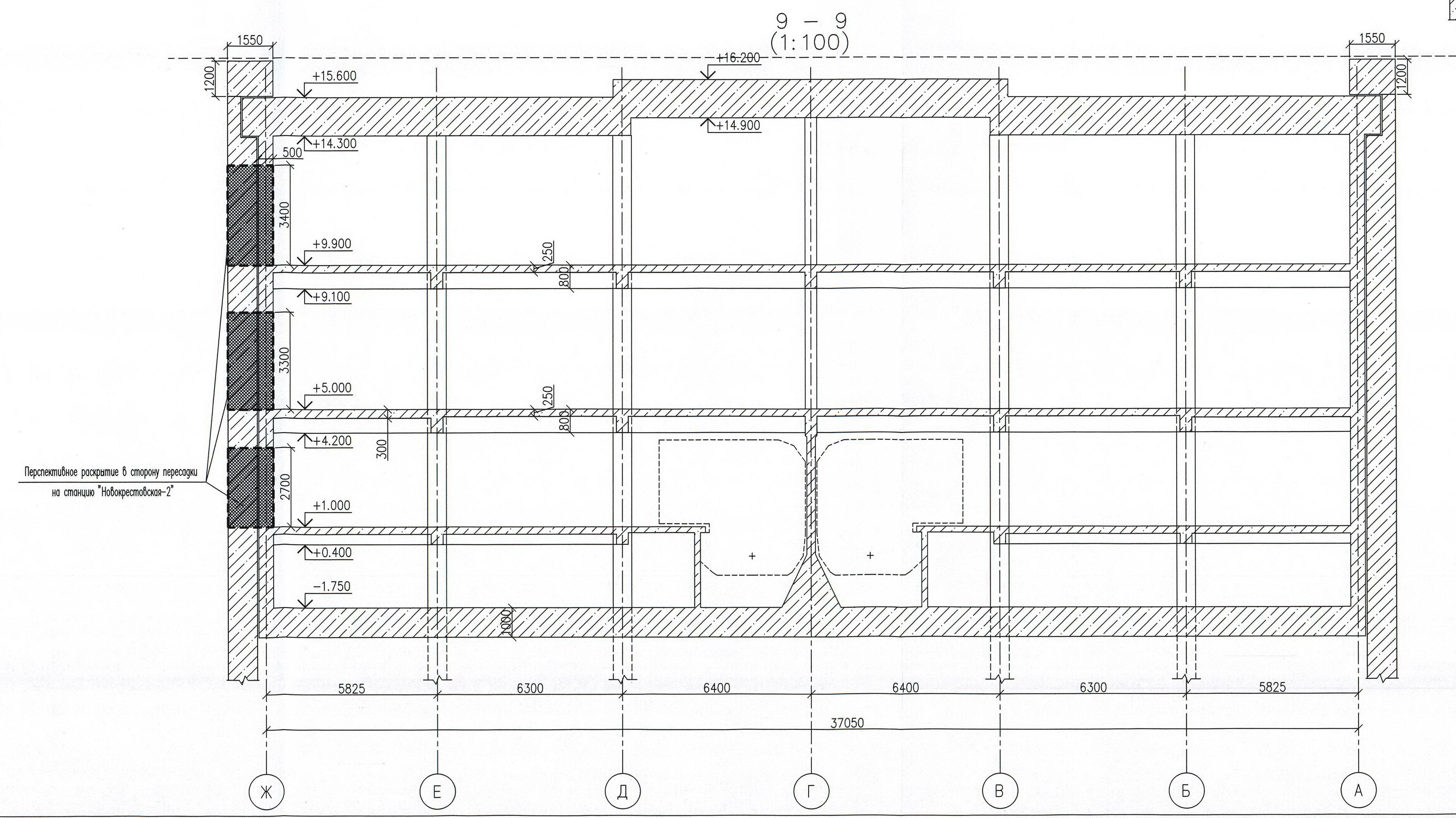
Есть на станции загадочные для меня места (выделил красным) на среднем уровне, примыкающие к переходному мостику. На чертежах обозначены голубым - пассажирская зона, но в спецификации помещений назначения нет. Место тупиковое, без транзитного трафика. Что это? Торговля, кассы стадиона, выставка кубков "Зенита"?
Всё потому, что кто-то слишком много ест!
- в40
- Профессионал

- Сообщения: 14816
- Зарегистрирован: 05 фев 2009, 19:46
- Станция метро: Проспект Большевиков
- Откуда: Дачное
Re: Новокрестовская
Вы же знаете: свято место - пусто не бывает.
Скорее всего, сначала здесь будут какие-то выставки, связанные с ЧМ-2018. А потом - либо торговля, либо метрополитен отгородит эти площади под служебные нужды.
Скорее всего, сначала здесь будут какие-то выставки, связанные с ЧМ-2018. А потом - либо торговля, либо метрополитен отгородит эти площади под служебные нужды.
О=О=О=О=О=О=О=О=О=О=О=О=О=О=О=О=О=О=О
- Nomernoy
- Профессионал

- Сообщения: 5193
- Зарегистрирован: 10 окт 2005, 16:25
- Станция метро: Театральная
- Откуда: Санкт-Петербург
Re: Новокрестовская
Если я правильно понимаю, то это как раз уровень перспективного перехода на Новокрестовскую-II. Давненько я видел какую-то схемку, где было указано там размещение скамеечек, декоративных объектов (скульптур и пр.). Ну а скорее всего, как метко сказал в40, это будет торговая зона - в первую очередь для придворных «Первых полос», «Хорошей связи».

- NeytiriMD
- Сообщения: 60
- Зарегистрирован: 29 янв 2017, 16:29
- Станция метро: -------
- Откуда: Москва
Re: Новокрестовская
Nomernoy писал(а):Если я правильно понимаю, то это как раз уровень перспективного перехода на Новокрестовскую-II.
Вот с этим вообще не понятно. Если смотреть на тот чертёж, который был в теме выше, то получается, что для перехода оставлено 4 проёма на уровне платформы. На уровне переходного моста нет никаких заделов (между пассажирской зоной и стеной расположены технические помещения). Соответственно, приехавшим их центра, для пересадки надо будет перейти на платформу "в центр", оттуда на Новокрестовскую-2, а затем, если надо ехать в сторону Морского Фасада, ещё раз перейти через пути по переходному мостику.
Так что либо будут разбирать технические помещения и делать переход на уровне мостика, либо получится очень глупая и необоснованно длинная пересадка.
- mx
- Профессионал

- Сообщения: 4138
- Зарегистрирован: 14 сен 2005, 21:32
- Станция метро: -------
- Откуда: 59`50N 30`25E
Re: Новокрестовская
в40 писал(а):А потом - либо торговля, либо метрополитен отгородит эти площади под служебные нужды.
Служебных помещений на станции и так - рекорд по количеству (кстати большой плюс по сравнению с глубоким заложением, не сравнить с каким-нибудь живопырным пилонником). Торговля в таком месте точно прогорит, через переходной мостик трафик будет близкий к нулю. Скорее всего пока его вообще закроют какими-нибудь барьерами от пассажирского движения. Смысл он приобретёт после строительства второй станции, как пересадочный.
А как он станет пересадочным?
А вот как:
NeytiriMD писал(а):На уровне переходного моста нет никаких заделов (между пассажирской зоной и стеной расположены технические помещения).
Если мы внимательно посмотрим проектную документацию то увидим, что заделы под пересадочные проёмы есть на всех трёх пассажирских уровнях. С верхним уровнем (кассовый зал) и нижним уровнем (пассажирская платформа) всё понятно. Остаётся вопрос по среднему уровню - переходному мостику. Заделы под проёмы там есть - это видно по чертежу №1. По тому же чертежу видно, что у боковых стен есть возвышения (уровень +6.250) относительно уровня мостика (+5.100) и на этих возвышениях находятся вспомогательные помещения эскалаторной службы и коридоры, соединяющие в одном уровне половинки станции. На каком же уровне находится проём под пересадку? Это видно из чертежа №2 - строительный чертёж перекрытий, сечение по мостику. Проём находится на уровне мостика (+5.000). А как устроено это возвышение у стены? Это видно из чертежа №3. Делая вывод из увиденного - задел под пересадку по переходному мостику есть и он находится на уровне мостика, но на скорое строительство второй станции проектировщики не рассчитывают и поэтому временно разместили на будущем переходе технологические помещения. А когда-нибудь потом (кто его знает когда?) они пойдут под снос.
Мне это представляется так.
Всё потому, что кто-то слишком много ест!
- mrkllll
- Сообщения: 2
- Зарегистрирован: 26 янв 2017, 21:15
- Станция метро: Площадь Ленина
- Откуда: Удельная
Re: Новокрестовская
Не дешевле ли вместо строительства полноценной новой станции НВК-2 (с уймой переходов на НВК), подвести два тоннеля ЛПЛ к западной и восточной стене НВК, пристроив две неширокие платформы и сделав порталы для пассажиров на концах стены? (Проще говоря, дополнить имеющийся платформенный зал с запада и с востока доп. платформами с путями разных направлений ЛПЛ). В таком случае мы бы получили: 1) Не нужно будет строить еще одну многоэтажную станцию, просто пристроить два длинных короба с сечением ~7x7 м. 2) Кросплатформенную пересадку.
Кстати, восточный тоннель ЛПЛ прошел бы под обоими НВУ.
Реально ли продолжить проходку от Морского Фасада однопутными щитами вплоть до парка 300-летия а там, например, перейти на двухпутный? Реально ли сделать такие пристройки вплотную к стенам рабочей станции на такой глубине? На картинке представил
Кстати, восточный тоннель ЛПЛ прошел бы под обоими НВУ. Реально ли продолжить проходку от Морского Фасада однопутными щитами вплоть до парка 300-летия а там, например, перейти на двухпутный? Реально ли сделать такие пристройки вплотную к стенам рабочей станции на такой глубине? На картинке представил
- слон
- Сообщения: 840
- Зарегистрирован: 08 апр 2005, 17:53
- last_fm: MetroFan
- Откуда: Восстания, Ал.Невского, Чернышевская
Re: Новокрестовская
mx, а зачем нужна лишняя работа, по созданию "возвышений у стены", неужели технические помещения нельзя расположить в одном уровне с мостиком?
- METRO-USSR
- Сообщения: 1132
- Зарегистрирован: 16 дек 2008, 21:21
- Станция метро: Выборгская
Re: Новокрестовская
На этот раз от меня большой подробный фотоотчет со станции, снятый не на телефон. На верхнем ярусе перегородки из газобетона растут как грибы после дождя, кассы уже готовы. Лестничные сходы скоро доведут до уровня перекрытия. Ленточный конвейер пока смонтирован до уровня перекрытия +9,900 и выведен на поверхность. На среднем уровне пока никаких изменений, не считая демонтажа расстрелов для прохода ТПМК и возвращения их на прежнее место за щитом. Внизу залиты первые захватки перекрытия платформы, продолжается заливка жесткого основания. В середине станции ведется разработка грунта под зумпф. Последнюю заходку лотка залили совсем недавно, видимо не стали торопиться пока щит встал. Грунт в пространстве между осями А-Б и Е-Ж полностью пока не выбран. Фотографии с ТПМК и с перегонным тоннелем смотрите в теме НВЛ, в один пост все не поместилось 

- Вложения
Ты кто такой, давай техзадание!
А теперь товарищи, внимание -
Нету ТЗ - давай до свидания!
А теперь товарищи, внимание -
Нету ТЗ - давай до свидания!
- mx
- Профессионал

- Сообщения: 4138
- Зарегистрирован: 14 сен 2005, 21:32
- Станция метро: -------
- Откуда: 59`50N 30`25E
Re: Новокрестовская
mrkllll писал(а):Не дешевле ли вместо строительства полноценной новой станции НВК-2 (с уймой переходов на НВК), подвести два тоннеля ЛПЛ к западной и восточной стене НВК, пристроив две неширокие платформы и сделав порталы для пассажиров на концах стены?
Предлагаю посмотреть сюда. Похоже?
Мысль очевидная, но насколько её можно воплотить - вопрос. При строительстве второй станции на одной "стене в грунте" можно сэкономить, она уже есть - стена существующей станции. А при строительстве по "улучшенному" варианту придётся строить две стены. Закрытым способом строить естественно не получится, квадратный тоннель не сделать. Строить вокруг действующей станции тоже сложно будет. Ну и от переходного мостика всё равно никуда не деться, значит средний уровень всё равно будет.слон писал(а):mx, а зачем нужна лишняя работа, по созданию "возвышений у стены", неужели технические помещения нельзя расположить в одном уровне с мостиком?
Уровень мостика ниже уровня среднего яруса, а технические помещения должны быть в одном уровне с ярусом. Приходится "приподнимать". Или ходить между половинками среднего яруса придётся по дополнительным лестницам и таскать запчасти по ним же.
Всё потому, что кто-то слишком много ест!
- в40
- Профессионал

- Сообщения: 14816
- Зарегистрирован: 05 фев 2009, 19:46
- Станция метро: Проспект Большевиков
- Откуда: Дачное
Re: Новокрестовская
mrkllll писал(а):просто пристроить два длинных короба с сечением ~7x7 м
Просто не получится. Придётся строить ограждающие конструкции (стены в грунте) на ту же глубину, что и на нынешней НК-1. Т.е. при таком варианте будут затронуты оба НВУ и ВВУ. А вместо одной длинной стены второй станции придётся строить две (западнее и восточнее НК-1), т.е. стоимость ограждающих конструкций в продольном направлении будет в два раза дороже. Да, и ширины коробов в 7 метров будет явно недостаточно, т.к. на новых платформах потребуется установка дополнительных эскалаторов.
mrkllll писал(а):Реально ли продолжить проходку от Морского Фасада однопутными щитами вплоть до парка 300-летия а там, например, перейти на двухпутный?
С технической точки зрения - реально. Но другими щитами, способными вести проходку в слабых грунтах (такими, как в Москве). В Санкт-Петербурге таких нет.
mrkllll писал(а):Реально ли сделать такие пристройки вплотную к стенам рабочей станции на такой глубине?
Конечно! Во всяком случае, пристройка второй станции к нынешней с западной стороны так и запланирована.
О=О=О=О=О=О=О=О=О=О=О=О=О=О=О=О=О=О=О
- mrkllll
- Сообщения: 2
- Зарегистрирован: 26 янв 2017, 21:15
- Станция метро: Площадь Ленина
- Откуда: Удельная
Re: Новокрестовская
Ладно ( А если вместо коробов построить закрытым способом два тоннеля, примыкающих к стенам НВК и сделать своего рода пилонник? Или это тоже дороже и нецелесообразно будет?в40 писал(а):Просто не получится. Придётся строить ограждающие конструкции (стены в грунте) на ту же глубину, что и на нынешней НК-1. Т.е. при таком варианте будут затронуты оба НВУ и ВВУ. А вместо одной длинной стены второй станции придётся строить две (западнее и восточнее НК-1), т.е. стоимость ограждающих конструкций в продольном направлении будет в два раза дороже.
Что-то подсказывает, что из-за подключения ЛПЛ пассажиропоток во время футбольных матчей почти не увеличится, а лишь разделится на две линии, так что не знаю, нужны ли еще эскалаторы... Там же их и так аж 12в40 писал(а):Да, и ширины коробов в 7 метров будет явно недостаточно, т.к. на новых платформах потребуется установка дополнительных эскалаторов.
Интересно когда могут у нас появиться)в40 писал(а):С технической точки зрения - реально. Но другими щитами, способными вести проходку в слабых грунтах (такими, как в Москве). В Санкт-Петербурге таких нет.
