Электродепо Красносельское
Модератор: Nomernoy
-
- Сообщения: 1804
- Зарегистрирован: 29 мар 2006, 15:52
- Контактная информация:
Re: Электродепо Красносельское
Из комментов в чате Подземника: https://t.me/c/1792427918/158463.
Ну так сразу и не скажешь... да и вообще не люблю о себе говорить... скромный видно...
-
- Сообщения: 1804
- Зарегистрирован: 29 мар 2006, 15:52
- Контактная информация:
Re: Электродепо Красносельское
Продолжаются работы по расчистке и подготовке территории будущей строительной площадки электродепо «Красносельское» (ТЧ-8), которое будет обслуживать новую Красносельско-Калининскую линию Петербургского метрополитена.
Подрядчиком выступает компания «Бамтоннельстрой-Мост». Вдоль улицы Маршала Казакова ведётся установка строительного ограждения и укладка дорожных плит на песчано-гравийную подушку. Освоение строительной площадки началось 2 августа 2024 года в районе перекрёстка проспекта Кузнецова и улицы Маршала Казакова.
Общая стоимость работ оценивается в 20 млрд рублей и включает:
- инженерные изыскания,
- разработку проектной и рабочей документации,
- строительно-монтажные работы.
https://t.me/podzemnik_spb/6737
Из комментов в чате Подземника: https://t.me/c/1792427918/163590.
Подрядчиком выступает компания «Бамтоннельстрой-Мост». Вдоль улицы Маршала Казакова ведётся установка строительного ограждения и укладка дорожных плит на песчано-гравийную подушку. Освоение строительной площадки началось 2 августа 2024 года в районе перекрёстка проспекта Кузнецова и улицы Маршала Казакова.
Общая стоимость работ оценивается в 20 млрд рублей и включает:
- инженерные изыскания,
- разработку проектной и рабочей документации,
- строительно-монтажные работы.
https://t.me/podzemnik_spb/6737
Из комментов в чате Подземника: https://t.me/c/1792427918/163590.
Ну так сразу и не скажешь... да и вообще не люблю о себе говорить... скромный видно...
-
- Сообщения: 1316
- Зарегистрирован: 10 июл 2019, 22:38
- Станция метро: Морской Фасад
Re: Электродепо Красносельское
99% это сюда. Там как раз конец открытого участка строительства (и начало собственно проходки). Тем более что площадка рампы как раз продлена на восток только что.
-
- Сообщения: 268
- Зарегистрирован: 28 янв 2010, 10:16
- Станция метро: Автово
Re: Электродепо Красносельское
Вопрос спорный.
1. Площадку да продлевают но на ее пути еще часть не снесенных гаражей.
2. В сети нет ни одной схемы депо подтверждающей это.
По схемам выше в теме конец депо оканчивается на Брестском бульваре.
При этом:
1. В новостях говорили что это расчистка под «Брестскую» и показывали рендеры.
2. На форуме есть схемы 2018г где в этом месте находится один из вестибюлей станции «Брестская» (второй ближе к Кузнецова)
Вывод: нужно подождать N время и станет ясно: если забор депо дотянется до этого места и оградит его значит сносят для депо, если после сноса участок останется свободным значит очистили на перспективу под «Брестскую»
1. Площадку да продлевают но на ее пути еще часть не снесенных гаражей.
2. В сети нет ни одной схемы депо подтверждающей это.
По схемам выше в теме конец депо оканчивается на Брестском бульваре.
При этом:
1. В новостях говорили что это расчистка под «Брестскую» и показывали рендеры.
2. На форуме есть схемы 2018г где в этом месте находится один из вестибюлей станции «Брестская» (второй ближе к Кузнецова)
Вывод: нужно подождать N время и станет ясно: если забор депо дотянется до этого места и оградит его значит сносят для депо, если после сноса участок останется свободным значит очистили на перспективу под «Брестскую»
-
- Сообщения: 161
- Зарегистрирован: 11 май 2009, 20:35
- Станция метро: Юго-Западная
Re: Электродепо Красносельское
Вы еще скажите, что очистка несанкционированной свалки на Доблести тоже под строительство метро. Проекта нет, а если бы был тот власти из каждого утюга про начало строительства пели.
Верните Доблести!
-
- Сообщения: 268
- Зарегистрирован: 28 янв 2010, 10:16
- Станция метро: Автово
Re: Электродепо Красносельское
Стало интересно, где заканчиваются границы участка выделенного под депо.
Посомотрел на публичной кадастровой карте (кому интересно ссылка https://ik7map.roscadastres.com/map/sankt-peterburg)
Вот скрин: участок под депо выделен желтым: И фрагмент крупнее Как видно восточная граница депо не доходит до Брестского бульвара.
Также если взять выложенную Выше предполагаемую схему депо, и посмотреть где расположен тоннель (по центру восточной стороны) и наложить его на центр участка, то получается что тоннель идет не под оставшимися гаражами и не под автосервисом, а севернее под склоном свалки (собственно там в апреле и бурили разведочные скважины выше в теме есть фотки) Теперь прикинем по длинам тоннелей открытого и закрытого способа
Берем общедоступные данные по проекту:
Длина тоннелей закрытого способа работ 2630 м (однопутные тоннели 1320 м и 1310 м)
Длина тоннеля открытого способа работ: 240 м
Смотрим где сейчас оканчиваются построенные тоннели к депо (в соседних темах есть схемы)
Вначале закрытый способ:
прикидываем примерно 1300м (обратите внимание что получается прямолинейный участок) И видим что о находится как раз на восточной границе участка.
Теперь оклыдываем 240м открытого И видим что он будет строиться на территории самого депо.
Посомотрел на публичной кадастровой карте (кому интересно ссылка https://ik7map.roscadastres.com/map/sankt-peterburg)
Вот скрин: участок под депо выделен желтым: И фрагмент крупнее Как видно восточная граница депо не доходит до Брестского бульвара.
Также если взять выложенную Выше предполагаемую схему депо, и посмотреть где расположен тоннель (по центру восточной стороны) и наложить его на центр участка, то получается что тоннель идет не под оставшимися гаражами и не под автосервисом, а севернее под склоном свалки (собственно там в апреле и бурили разведочные скважины выше в теме есть фотки) Теперь прикинем по длинам тоннелей открытого и закрытого способа
Берем общедоступные данные по проекту:
Длина тоннелей закрытого способа работ 2630 м (однопутные тоннели 1320 м и 1310 м)
Длина тоннеля открытого способа работ: 240 м
Смотрим где сейчас оканчиваются построенные тоннели к депо (в соседних темах есть схемы)
Вначале закрытый способ:
прикидываем примерно 1300м (обратите внимание что получается прямолинейный участок) И видим что о находится как раз на восточной границе участка.
Теперь оклыдываем 240м открытого И видим что он будет строиться на территории самого депо.
-
- Сообщения: 460
- Зарегистрирован: 18 янв 2018, 17:03
- Станция метро: Московские Ворота
Re: Электродепо Красносельское
Как будто и места нет для временной станции типа Дачного.
-
- Сообщения: 268
- Зарегистрирован: 28 янв 2010, 10:16
- Станция метро: Автово
Re: Электродепо Красносельское
Так насколько известно никакая временная станция и не планируется.
-
- Сообщения: 1316
- Зарегистрирован: 10 июл 2019, 22:38
- Станция метро: Морской Фасад
Re: Электродепо Красносельское
Как концепт, временная станция была бы неплоха, но там сразу начинается уклон и места под теоретический "южный Парнас" (а северный - тоже временный, от Просвета основная линия направлена на север просто последние 35 лет основным вектором никто не занимался) просто нет, с т.з. уклонов.
Возможно, что стройплощадка будет шире чем площадка будущего депо - как это часто бывает с площадками станций.
Возможно, что стройплощадка будет шире чем площадка будущего депо - как это часто бывает с площадками станций.
-
- Сообщения: 268
- Зарегистрирован: 28 янв 2010, 10:16
- Станция метро: Автово
Re: Электродепо Красносельское
На Ростендере появились тендеры на временные сети для строительства депо.
В конкурсной документации есть ПОС на стройку, в нем чертежи стройплощадки.
Скачал и выложил в файлобменник (там 56Мб) скачать можно по ссылке: https://disk.yandex.ru/d/Lx-6GMRva5r0FQ
Качайте, изучайте, обсуждайте.
По чертежам получается все так как предполагал в своем сообщении от 20.08.2025г.
А именно:
1. Стройплощадка оканчивается перед оставшимися гаражами не доходя Брестского бульвара
2. Стартовый котлован сооружается в пределах стройплощадки и с него стартует ТПМК
3. Т.к. стартовый котлован находится под откосом холма бывшей свалки будет срываться часть холма свалки
Т.е все сносы автосервисов и гаражей не имеют отношения к депо, а видимо городские имущественные заморочки (окончание аренды, незаконный захват территории "самострой" и т.п.)
В связи с большим размером файла мой компьютер его "переваривает" с трудом (перевести в jpg, сделать скрины невозможно), поэтому поясняющие фрагменты выложить не могу
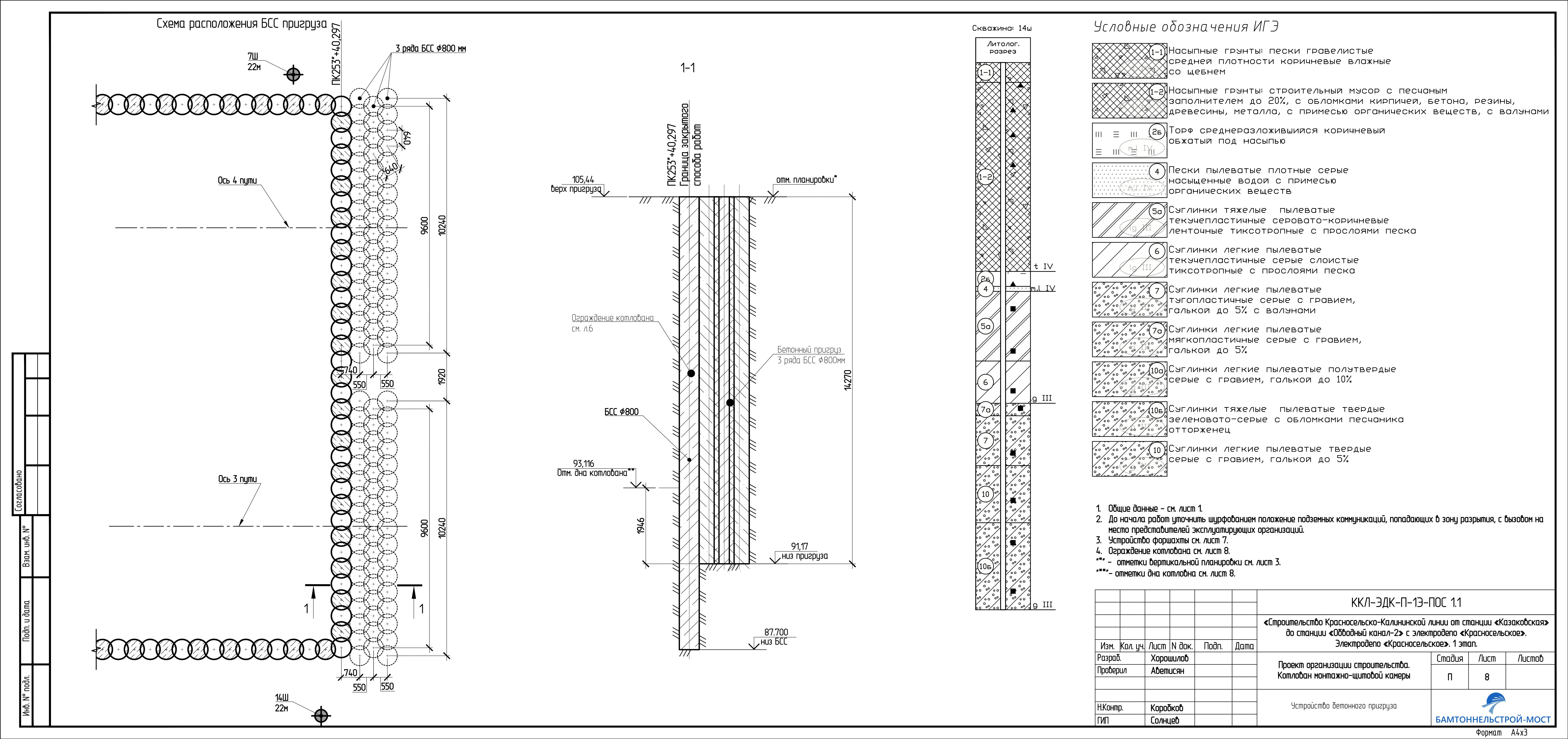
Смог сделать только такую картиночку со схемой стартового котлована.
В конкурсной документации есть ПОС на стройку, в нем чертежи стройплощадки.
Скачал и выложил в файлобменник (там 56Мб) скачать можно по ссылке: https://disk.yandex.ru/d/Lx-6GMRva5r0FQ
Качайте, изучайте, обсуждайте.
По чертежам получается все так как предполагал в своем сообщении от 20.08.2025г.
А именно:
1. Стройплощадка оканчивается перед оставшимися гаражами не доходя Брестского бульвара
2. Стартовый котлован сооружается в пределах стройплощадки и с него стартует ТПМК
3. Т.к. стартовый котлован находится под откосом холма бывшей свалки будет срываться часть холма свалки
Т.е все сносы автосервисов и гаражей не имеют отношения к депо, а видимо городские имущественные заморочки (окончание аренды, незаконный захват территории "самострой" и т.п.)
В связи с большим размером файла мой компьютер его "переваривает" с трудом (перевести в jpg, сделать скрины невозможно), поэтому поясняющие фрагменты выложить не могу

Смог сделать только такую картиночку со схемой стартового котлована.
-
- Сообщения: 268
- Зарегистрирован: 28 янв 2010, 10:16
- Станция метро: Автово
Re: Электродепо Красносельское
Вытащил картинки
-
- Сообщения: 1316
- Зарегистрирован: 10 июл 2019, 22:38
- Станция метро: Морской Фасад
Re: Электродепо Красносельское
Нехило, 16 метров срезать. там всего до уровня моря останется сколько, полтора-два? кстати, при положении депо так близко к заливу - кто-то подумал про антизатопительные мероприятия?
-
- Сообщения: 268
- Зарегистрирован: 28 янв 2010, 10:16
- Станция метро: Автово
Re: Электродепо Красносельское
Относительно наводнения:
За все время пока я живу в этом районе (с 70х годов) ни разу речка "Красненькая" не выходила из берегов. Да уровень поднимался, но чтобы затапливало окрестности такого небыло.
Кроме того у нас есть КЗС (Дамба) и проблем наводнений решена.
Наконец депо "Автово" также расположено недалеко от Красненькой и не слышал новостей чтобы оно страдало от наводнений. Кроме того случая в 80х, когда затопило тоннели водой от аварии на теплосети.
Относительно высокого уровня грунтовых вод, об этом указано в пояснительной записке ПОС, предусмотрят дренажи, гидроизоляцию и т.п.
За все время пока я живу в этом районе (с 70х годов) ни разу речка "Красненькая" не выходила из берегов. Да уровень поднимался, но чтобы затапливало окрестности такого небыло.
Кроме того у нас есть КЗС (Дамба) и проблем наводнений решена.
Наконец депо "Автово" также расположено недалеко от Красненькой и не слышал новостей чтобы оно страдало от наводнений. Кроме того случая в 80х, когда затопило тоннели водой от аварии на теплосети.
Относительно высокого уровня грунтовых вод, об этом указано в пояснительной записке ПОС, предусмотрят дренажи, гидроизоляцию и т.п.
- GelezinisVilkas
- Сообщения: 3532
- Зарегистрирован: 15 май 2015, 12:19
- Станция метро: Дунайская
Re: Электродепо Красносельское
Дамба может держать наводнения только 48 часов. К этому времени всю акваторию заполнит невская вода.
Учитывая всевозможные намывы это время ещё сокращается.
В новейшей истории город после 1924 года не сталкивался с катастрофическими наводнениями и сработает ли дамба не понятно.
Логичнее всего было бы располагать депо на литориновом уступе за станцией Сосновая поляна, но ЛМГТшникам виднее, на кромке залива оно видимо нужнее.
Учитывая всевозможные намывы это время ещё сокращается.
В новейшей истории город после 1924 года не сталкивался с катастрофическими наводнениями и сработает ли дамба не понятно.
Логичнее всего было бы располагать депо на литориновом уступе за станцией Сосновая поляна, но ЛМГТшникам виднее, на кромке залива оно видимо нужнее.

-
- Сообщения: 2238
- Зарегистрирован: 07 окт 2014, 21:16
- Станция метро: Юго-Западная
- Откуда: Санкт-Петербург
Re: Электродепо Красносельское
ТЧ-5 Невское тоже находится недалеко от Невы (извиняюсь за тавтологию), но вроде претензий никогда не было.