Дунайская

Здесь обсуждаем все, что связано со станциями нашего метрополитена
Ответить
Аватара пользователя
kot
Профессионал
Профессионал
Сообщения: 8283
Зарегистрирован: 21 июл 2007, 17:39
Станция метро: Озерки
Откуда: издалека

Re: Дунайская

Сообщение kot »

в40 писал(а):Если я Вас правильно понял, то честными и беспристрастными остались только представители принимающей стороны? Ну, если это так, то откуда тогда протечки появились?
Может быть качество проекта тоже хромает?
Неправильно Вы меня поняли.
Нет честных и беспристрастных во всей цепочке.
У всех свои интересы.
То, что проекты хромают на обе ноги видно невооружённым глазом.
Причём они хромают начиная от самых первых, до самых последних. Все, без исключения.
Приёмщики, разумеется, тоже те ещё кадры. Как можно принимать откровенную халтуру?
Короче, виноваты все.
А реально пострадавшим остаётся, как обычно, конечный потребитель, который за свои деньги получил откровенный брак.
Хотя и он тоже виноват. Своим соглашательством с тем, что его откровенно дурят и обворовывают.
Если не знаешь, что делать - не делай ничего.
Аватара пользователя
GelezinisVilkas
Сообщения: 3655
Зарегистрирован: 15 май 2015, 12:19
Станция метро: Дунайская

Re: Дунайская

Сообщение GelezinisVilkas »

Прогулки по Дунайской. Часть 2.
Продолжаем осматривать Южный вестибюль и платформы.

Платформа в сторону Шушар, так как она ближе всего к холму, течёт она побольше чем противоположная. Но это сугубо по моим наблюдениям.
IMG_0628.JPG

То же место с другого ракурса.
IMG_0629.JPG

Штукатурка на стенах вдоль эскалаторов обвалилась практически везде, видимо не выдерживает вибраций.
К слову про эскалаторы, ни одна машина нормально не настроена. На некоторых сильная вибрация поручней, такая что руку до плеча колбасит. Где то и ступени не слабо колбасит, стоишь как на вибростоле.
Если поручень не вибрирует, то он просто уезжает с большой скоростью, хоть высота подъёма и не высока, всего 8 метров, но за это время поручень уезжает вперёд на метр.
IMG_0630.JPG

Если внимательно присмотреться то видно, что вдоль стены течёт ручей.
IMG_0631.JPG

IMG_0632.JPG

IMG_0633.JPG

Когда все пассажиры с прибывшего поезда уходят, в вестибюле становиться тихо и слышно как шумит водопадик в дренажке и как капает вода на крышку ящика, кап-кап-кап. Забавно.
IMG_0634.JPG

Ну и куда же без Т-колонны, она слева.
IMG_0636.JPG
:twisted:
Randy
Сообщения: 3170
Зарегистрирован: 25 янв 2005, 13:31

Re: Дунайская

Сообщение Randy »

а с какой стороны Вуковар треснул? с платформы в центр не заметил ничего
Аватара пользователя
Metroschemes
Сообщения: 6499
Зарегистрирован: 22 окт 2005, 04:19
last_fm: Metroschemes
Станция метро: Парнас
Откуда: Питер
Контактная информация:

Re: Дунайская

Сообщение Metroschemes »

Наглядное отражение качества работы как заказчиков, так и исполнителей...
Всего за месяц ЗЕНИТ взял три трофея и одну станцию метро!
Заходите на мой сайт: Схема метро - История метрополитенов в схемах!
Аватара пользователя
GelezinisVilkas
Сообщения: 3655
Зарегистрирован: 15 май 2015, 12:19
Станция метро: Дунайская

Re: Дунайская

Сообщение GelezinisVilkas »

Randy писал(а):а с какой стороны Вуковар треснул? с платформы в центр не заметил ничего

Да, но я сегодня хотел это тоже снять, но не увидел, хотя раньше видно было. Может нужно с определённой стороны стоять?
:twisted:
Аватара пользователя
Михаил
Сообщения: 4333
Зарегистрирован: 17 май 2004, 10:20
Станция метро: Лиговский Проспект-2
Откуда: Питер

Re: Дунайская

Сообщение Михаил »

А что с северным вестибюлем?
Igorix
Сообщения: 368
Зарегистрирован: 16 сен 2015, 15:16
Станция метро: Купчино

Re: Дунайская

Сообщение Igorix »

Про северный я уже писал, правда без фоток. Примерно то же самое, но слегка попроще - течет Т-образная колонна (там видимо стык между лестницей и самой станцией), течет около рамок, плюс следы на стенах, но слегка меньше. Сломана дверь внизу на входе и одна рамка (причем друг другу они не соответствуют), сверху все двери целы.

Траволаторы не работают, на них висит сигнальная лента и стоят метрополитеновцы, скучают. Сама лестница ппц грязная (или так задумано?).

Эскалаторы, на мой взгляд, работают вполне нормально - ни резких уводов поручня ни перекоса ступеней я не видел, все работают (на мой взгляд даже излишне).


И самое главное - имхо никто специально не исправляет ни косяки ни протечки, вероятно ждут гарантийных работ. Максимум - прилепили пленку на Т-колонну, чтобы вода совсем не капала на людей.
Zayats
Сообщения: 97
Зарегистрирован: 21 мар 2011, 16:37
Станция метро: Чернышевская

Re: Дунайская

Сообщение Zayats »

Как метро вы назовете, так оно и потечет. Здесь, как я вижу, современная инсталляция в жанре неоконцептуализма "Дунайские волны", по бухарестскому вальсу полуторавековой давности. Возможно, это "Дунай голубой" - так называлась популярная в СССР адаптация Самуила Болотина.

Болотин писал(а):И бегут, бегут струи светлых вод,
Светлых вод, всё вперед.
...
Влиться стремясь в воды твои,
Звонко журчат ручьи.


P.S. Напомню, что неоконцептуализм - это искусство задавать вопросы о мироздании, на которые не удается получить ответ. Композиция "Дунайские волны" ставит сразу два вопроса: кто виноват и что делать?
Randy
Сообщения: 3170
Зарегистрирован: 25 янв 2005, 13:31

Re: Дунайская

Сообщение Randy »

GelezinisVilkas писал(а):
Randy писал(а):а с какой стороны Вуковар треснул? с платформы в центр не заметил ничего

Да, но я сегодня хотел это тоже снять, но не увидел, хотя раньше видно было. Может нужно с определённой стороны стоять?


Может, так было задумано? :wink:
Den.S
Сообщения: 4446
Зарегистрирован: 30 апр 2009, 20:14
Станция метро: Кировский Завод
Контактная информация:

Re: Дунайская

Сообщение Den.S »

Подробный разбор ситуации с витражами на "Славы" и мозаиками на "Дунайской": http://www.rtr.spb.ru/vesti_spb/news_de ... p?id=38057
Если подытожить: планируют при благоприятном стечении обстоятельств всё сделать в штатном виде к лету следующего года.
Аватара пользователя
в40
Профессионал
Профессионал
Сообщения: 14816
Зарегистрирован: 05 фев 2009, 19:46
Станция метро: Проспект Большевиков
Откуда: Дачное

Re: Дунайская

Сообщение в40 »

GelezinisVilkas писал(а):Платформа в сторону Шушар, так как она ближе всего к холму, течёт она побольше чем противоположная. Но это сугубо по моим наблюдениям.

Интересное наблюдение: ещё в прошлом, 2018 году стены станции были почти полностью отделаны. Но никаких протечек ни весной, ни осенью, ни зимой не наблюдалось. Появились они только после окончания работ по обратной засыпке конструктива станции. Видимо, проектировщики не предусмотрели дренаж и глиняный замок, которые отводили бы поверхностные воды в ливневую канализацию.
О=О=О=О=О=О=О=О=О=О=О=О=О=О=О=О=О=О=О
Аватара пользователя
darkglare
Сообщения: 2138
Зарегистрирован: 26 ноя 2006, 07:31
Станция метро: Автово
Откуда: Питер

Re: Дунайская

Сообщение darkglare »

в40 писал(а):Видимо, проектировщики не предусмотрели дренаж и глиняный замок, которые отводили бы поверхностные воды в ливневую канализацию.

а строители, когда строили, этого не могли понимать? ну понятно, не рядовые работяги может быть, но есть же инженеры, бригадиры, не знаю, кто там еще? я не силен в вопросах организации строительства, не неужели не осталось совсем ответственных людей, которые осознавали бы, что им предложили строить по инновационному методу "из говна и палок"? или это все - сущий идеализм?
Randy
Сообщения: 3170
Зарегистрирован: 25 янв 2005, 13:31

Re: Дунайская

Сообщение Randy »

штоб не было п@#&дежу, делай все по чертежу.

это и в "штатных" ситуациях закон, а уж при таких пертурбациях, как со строительством ФР, полагаю, исполнителям меньше всего хотелось заниматься рационализаторством.
Аватара пользователя
GelezinisVilkas
Сообщения: 3655
Зарегистрирован: 15 май 2015, 12:19
Станция метро: Дунайская

Re: Дунайская

Сообщение GelezinisVilkas »

Прогулки по Дунайской. Часть 3.

Сегодня посмотрим северный вестибюль, с открытия я попал туда первый раз и был немного удивлён, так как южный и северный заметно отличаются.

Тут тоже обвалилась штукатурка у эскалаторов.
IMG_0637.JPG

Баночки и ведёрки, это фишка чисто северного вестибюля, в южном такого нет.
IMG_0638.JPG

Похоже тут должны были быть батареи отопления закрытые декоративной решёткой. "Технадзор станцию принял, ага"
IMG_0640.JPG

С другого ракурса. И ещё одна баночка.
IMG_0642.JPG

Здесь сразу две интересных вещи. Это единственная мозаика (недоделанная) и грубая ошибка в проектировании. Вместо прямого прохода с эскалаторов к выходу (он у меня за спиной), на пути пассажиров стеклянная стена, хотя логичнее было бы видеть там турникеты. Причём это проектное решение и оно отображено в чертеже. На вход такая же история, на прямом проходе стеклянная стена. Почему было не сделать стенку в середине, а турникеты по краям?
IMG_0641.JPG

IMG_0643.JPG

В целом серверный вестибюль посуше чем южный. Хотя может это временно.
IMG_0644.JPG

Целый отряд баночек-канистрочек заботится о сухости ног пассажиров :)
IMG_0645.JPG

Ответ на вопрос "Почему на станции вода?" находится на поверхности, потому что сверху болотце.
Причём над самой станцией достаточно сухо, ну это естественно ведь водице есть куда уходить.
Как уже было сказано выше, дренаж отсутствует, потому станция и течёт. И это ещё одна грубейшая ошибка.
IMG_0649.JPG

IMG_0648.JPG

Так же хочу обратить внимание на ещё одну грубейшую ошибку в проектировании.
Дело в том что сотрудники ЛМГТ не достаточно квалифицированы и не умеют просчитывать и продумывать потоки пассажиров и модели перемещения пассажиров по станции. В этом они не одиноки Метрополитен это тоже делать не умеет.
Так вот о чём я - лестнично-траволаторные группы спроектированы на обеих станциях неправильно, вместо того что бы в первую очередь направлять пассажиров на подъёмник, расположив его ближе всего к входу и выходу, он наоборот задвинут в самый дальний угол, а пассажирам предлагается в первую очередь трёхмаршевая лестница. Это очень грубая ошибка так как это приводит к тому что весь поток на вход пересекается со всем потоком на выход.
Помимо удобства для пассажиров это позволило либо сделать площадь подземного вестибюля меньше, либо увеличить площадь служебных помещений за счёт аппендикса у лестницы который и так никак не используется.
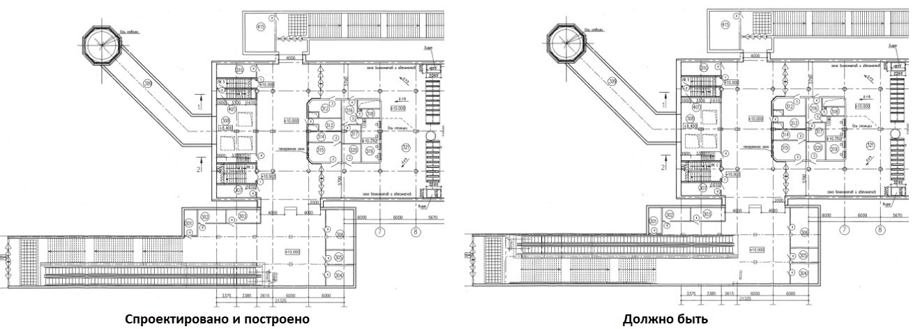
Для примера я просто поправил чертёж в Paint за минуту.
Screenshot_45.jpg

Вообще признаю, что использование траволаторов для подъёма между уровнями это ошибка, они неудобны, дороги, из за них пришлось увеличить площадь вестибюля, что удорожило строительство.
Намного более удобным решением выглядит всё же использование двух эскалаторов, лестницы и лифта, это давно проверенное и удобное решение. Но кто же знал, без опыта постоянного использования понять это было сложно.
Не ясно зачем траволаторы сделаны на выходе из северного вестибюля? Ведь лифта на платформу из него нет!? И это ещё одна ошибка в проектировании.
:twisted:
Randy
Сообщения: 3170
Зарегистрирован: 25 янв 2005, 13:31

Re: Дунайская

Сообщение Randy »

самое непонятное для меня в этой конструкции - зачем нужны выходы на бульвар (
Ответить

Вернуться в «Станции»