Адмиралтейская
Модератор: Nomernoy
- Till
- Сообщения: 2050
- Зарегистрирован: 02 янв 2005, 16:54
- Станция метро: Академическая
- Откуда: Ленинград
Re: Адмиралтейская
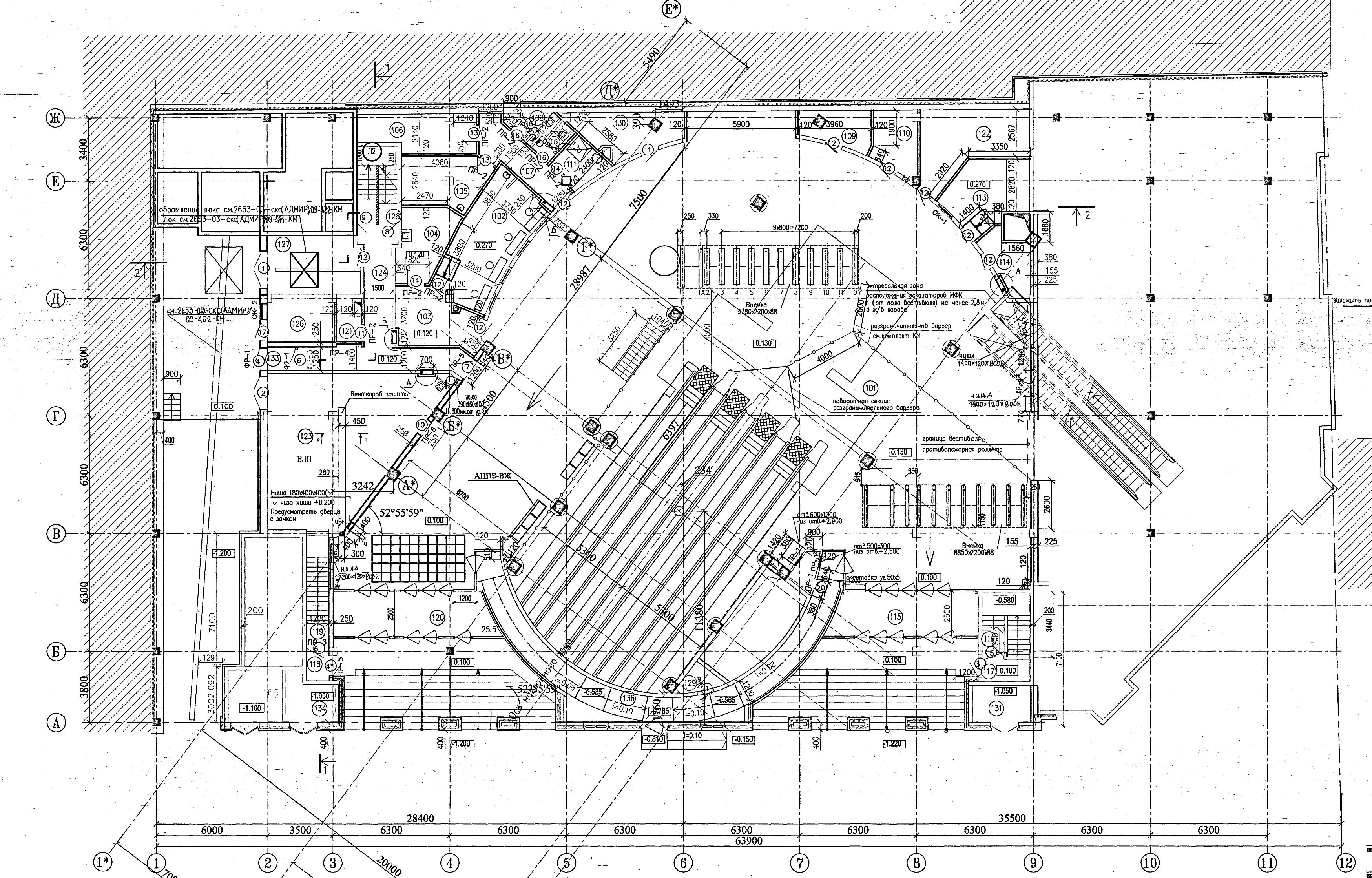
А почему, собственно, мы говорим только о взаимоисключающих возможностях? Почему невозможно задействовать и Кирпичный, и фасад к "Невскому"? Два входа-выхода лучше одного.
Осторожно, двери закрываются!.. Следующая станция... О! А вот и она!
В ранней юности моей мечтой было увидеть ленинградское метро с восемью линиями. Сейчас моя мечта - увидеть петербургское метро без НИПа и рекламы. Как меняются времена!
В ранней юности моей мечтой было увидеть ленинградское метро с восемью линиями. Сейчас моя мечта - увидеть петербургское метро без НИПа и рекламы. Как меняются времена!
- Шуруп
- Сообщения: 287
- Зарегистрирован: 24 июл 2007, 06:32
Re: Адмиралтейская
Из описания: "Входная группа в многофункциональный комплекс организована со стороны фасада выходящего на Невский проспект."
- Almak
- Сообщения: 721
- Зарегистрирован: 18 янв 2009, 11:41
- Станция метро: Купчино
Re: Адмиралтейская
Вот тут viewtopic.php?f=23&t=7031 в статьях говорилось, что, из-за устройства торгового комплекса в здании, площадь вестибюля "Адмиралтейской" придётся уменьшить, а также упростить его архитектурное решение.
А вот тут приведен, как я понимаю, новый проект вестибюля, уже без стеклянного купола: viewtopic.php?f=23&t=7075
А вот тут приведен, как я понимаю, новый проект вестибюля, уже без стеклянного купола: viewtopic.php?f=23&t=7075
- goodspeedy
- Сообщения: 104
- Зарегистрирован: 16 июл 2010, 10:27
- Станция метро: Гостиный Двор
- Brayn
- Сообщения: 945
- Зарегистрирован: 17 янв 2007, 10:40
- Станция метро: Девяткино
- SAM
- Сообщения: 378
- Зарегистрирован: 26 фев 2008, 00:13
- Станция метро: Кудрово
- Откуда: Санкт-Петербург
Re: Адмиралтейская
Мда....Проект.... Бедненько, но чистенько 

- Шуруп
- Сообщения: 287
- Зарегистрирован: 24 июл 2007, 06:32
Re: Адмиралтейская
Brayn писал(а):Что за синие прутья на фото goodspeedy на 208 странице?
Леса?
- Florstein
- Сообщения: 2859
- Зарегистрирован: 03 окт 2005, 18:03
- Станция метро: Проспект Ветеранов
Re: Адмиралтейская
Не хочется быть банальным, но в сравнении с этим - земля и небо, песок и овёс... Вот она и самая долгожданная станция. 

-
- Сообщения: 9
- Зарегистрирован: 12 авг 2011, 21:07
- Станция метро: Выборгская
Re: Адмиралтейская
дддда...грусно
на первоночальном варианте попахивает китчем..но это ли плохо хотябы гденибуть
ну и последний вариант тоже лучше чем ничего..
на первоночальном варианте попахивает китчем..но это ли плохо хотябы гденибуть
ну и последний вариант тоже лучше чем ничего..
- karhu
- Сообщения: 3938
- Зарегистрирован: 31 дек 2008, 19:14
- Станция метро: Василеостровская
- Откуда: Санкт-Петербург
Re: Адмиралтейская
Панно какое красивое!
И можно будет ориентироваться гоекритинам по розе ветров с указанием сторон света. Это вам не хухры.. вымя горьковское.

И можно будет ориентироваться гоекритинам по розе ветров с указанием сторон света. Это вам не хухры.. вымя горьковское.

"Ключик на 60 дайте, пожалуйста".
- Константин Филиппов
- Сообщения: 4904
- Зарегистрирован: 06 окт 2004, 11:02
- Станция метро: Озерки
- Откуда: Санкт-Петербург
- Контактная информация:
Re: Адмиралтейская
Это если у них хватит ума расположить её правильно, а то будет стрелка север на какой-нибуть юго-восток указывать.
Ꙁа Россию!!!
-
- Сообщения: 3151
- Зарегистрирован: 25 янв 2005, 13:31
Re: Адмиралтейская
karhu писал(а):Панно какое красивое!![]()
И можно будет ориентироваться гоекритинам
шо за воинствующий сионизм

- MaksegZ
- Сообщения: 4551
- Зарегистрирован: 15 янв 2006, 06:54
- Станция метро: Московская
- Откуда: Питер
- Контактная информация:
Re: Адмиралтейская
Мда... я, конечно, знал, что для ПМ на первом месте бабло, но чтобы до такой степени. Ещё одна потеря в списке, предыдущей был вроде бы вестибюль Звенигородской.
Дунайская течёт... как вы судно назовёте, так оно и поплывёт 
"Надо строить быстро, качественно и недорого" © правительство СПб
Создал чат в ТГ, присоединяемся - https://t.me/subwaytalks

"Надо строить быстро, качественно и недорого" © правительство СПб
Создал чат в ТГ, присоединяемся - https://t.me/subwaytalks
- karhu
- Сообщения: 3938
- Зарегистрирован: 31 дек 2008, 19:14
- Станция метро: Василеостровская
- Откуда: Санкт-Петербург
Re: Адмиралтейская
"Ключик на 60 дайте, пожалуйста".
- djtonik
- Отец-основатель
- Сообщения: 6769
- Зарегистрирован: 15 апр 2004, 07:02
- last_fm: djtonik
- Станция метро: Сосновая Поляна
- Откуда: Санкт-Петербург
- Контактная информация:
Re: Адмиралтейская
Сжатый, узкий, тесный скотозагон — вот что получится в итоге.
Тройное «ку» господам инвесторам.
Тройное «ку» господам инвесторам.
...партия сказала «надо» — метрострой ответил «есть»...
---
---