
Дунайская (Дунайский проспект)
Модератор: Nomernoy
-
a$3.14rin
- Сообщения: 79
- Зарегистрирован: 09 авг 2006, 15:32
- Станция метро: Дунайская
Re: Дунайская (Дунайский проспект)
На площадке "Дунайской" бодро разрабатывают котлован вдоль Бухарестской. Видимо РД как-то оказалась в руках Метростроя 

-
a$3.14rin
- Сообщения: 79
- Зарегистрирован: 09 авг 2006, 15:32
- Станция метро: Дунайская
- karhu
- Сообщения: 3938
- Зарегистрирован: 31 дек 2008, 19:14
- Станция метро: Василеостровская
- Откуда: Санкт-Петербург
Re: Дунайская (Дунайский проспект)
Что-то в последнем "Метростроителе" очень смутно описано строительство станции.
Вопросы:
1. Зачем нужно мудрить с временной плитой(временной ли) под леса под опалубку для верхней плиты перекрытия, когда можно было бы по "стандарту" работать полность методом "top&down"? Быстрее и дешевле выходит? Или просто быстрее?
2. На фото видны выпуски арматуры центральных колонн. Как щит собирается их преодолеть, если разработку котлована продолжат только после прохода его щитом?
Вопросы:
1. Зачем нужно мудрить с временной плитой(временной ли) под леса под опалубку для верхней плиты перекрытия, когда можно было бы по "стандарту" работать полность методом "top&down"? Быстрее и дешевле выходит? Или просто быстрее?
2. На фото видны выпуски арматуры центральных колонн. Как щит собирается их преодолеть, если разработку котлована продолжат только после прохода его щитом?
"Ключик на 60 дайте, пожалуйста".
- 71-153
- Сообщения: 303
- Зарегистрирован: 20 май 2007, 17:29
- Станция метро: Бухарестская
- Откуда: Санкт-Петербург
Re: Дунайская (Дунайский проспект)
2. Щит пройдет между колоннами.
- karhu
- Сообщения: 3938
- Зарегистрирован: 31 дек 2008, 19:14
- Станция метро: Василеостровская
- Откуда: Санкт-Петербург
Re: Дунайская (Дунайский проспект)
Можно уточнить?
Между какими именно?
Между какими именно?
"Ключик на 60 дайте, пожалуйста".
- в40
- Профессионал

- Сообщения: 14816
- Зарегистрирован: 05 фев 2009, 19:46
- Станция метро: Проспект Большевиков
- Откуда: Дачное
Re: Дунайская (Дунайский проспект)
Это просто выравнивающая стяжка для установки опалубки перекрытия. В дальнейшем при разработке грунта следующего яруса она будет разломана.karhu писал(а):Зачем нужно мудрить с временной плитой(временной ли) под леса под опалубку для верхней плиты перекрытия, когда можно было бы по "стандарту" работать полность методом "top&down"? Быстрее и дешевле выходит? Или просто быстрее?
Центральных колонн нет. Внутри котлована вдоль оси станции сооружено два ряда колонн (правее и левее будущей обделки двухпутного тоннеля). Между этими рядами и должен пройти щит.karhu писал(а):На фото видны выпуски арматуры центральных колонн. Как щит собирается их преодолеть, если разработку котлована продолжат только после прохода его щитом?
О=О=О=О=О=О=О=О=О=О=О=О=О=О=О=О=О=О=О
- karhu
- Сообщения: 3938
- Зарегистрирован: 31 дек 2008, 19:14
- Станция метро: Василеостровская
- Откуда: Санкт-Петербург
Re: Дунайская (Дунайский проспект)
в40 писал(а):Это просто выравнивающая стяжка для установки опалубки перекрытия. В дальнейшем при разработке грунта следующего яруса она будет разломана.karhu писал(а):Зачем нужно мудрить с временной плитой(временной ли) под леса под опалубку для верхней плиты перекрытия, когда можно было бы по "стандарту" работать полность методом "top&down"? Быстрее и дешевле выходит? Или просто быстрее?
А временная она потому, что плита перекрытия следующего уровня будет на пути щита. Понятно, хитро придумали.
в40 писал(а):Центральных колонн нет. Внутри котлована вдоль оси станции сооружено два ряда колонн (правее и левее будущей обделки двухпутного тоннеля). Между этими рядами и должен пройти щит.karhu писал(а):На фото видны выпуски арматуры центральных колонн. Как щит собирается их преодолеть, если разработку котлована продолжат только после прохода его щитом?
Спасибо, в40.
"Ключик на 60 дайте, пожалуйста".
- karhu
- Сообщения: 3938
- Зарегистрирован: 31 дек 2008, 19:14
- Станция метро: Василеостровская
- Откуда: Санкт-Петербург
Re: Дунайская (Дунайский проспект)
в40, но конструкции, выделенные красным кружком, всё же будут?
"Ключик на 60 дайте, пожалуйста".
- Пумяух**
- Сообщения: 1384
- Зарегистрирован: 18 янв 2012, 21:33
- Станция метро: Крестовский Остров
Re: Дунайская (Дунайский проспект)
А какая получается ширина платформы?
- в40
- Профессионал

- Сообщения: 14816
- Зарегистрирован: 05 фев 2009, 19:46
- Станция метро: Проспект Большевиков
- Откуда: Дачное
Re: Дунайская (Дунайский проспект)
Будут. Но они будут сооружаться уже после разборки обделки тоннеля.karhu писал(а):но конструкции, выделенные красным кружком, всё же будут?
Поищите информацию на предыдущих страницах темы.Пумяух** писал(а):А какая получается ширина платформы?
О=О=О=О=О=О=О=О=О=О=О=О=О=О=О=О=О=О=О
- Михаил
- Сообщения: 4333
- Зарегистрирован: 17 май 2004, 10:20
- Станция метро: Лиговский Проспект-2
- Откуда: Питер
- karhu
- Сообщения: 3938
- Зарегистрирован: 31 дек 2008, 19:14
- Станция метро: Василеостровская
- Откуда: Санкт-Петербург
Re: Дунайская (Дунайский проспект)
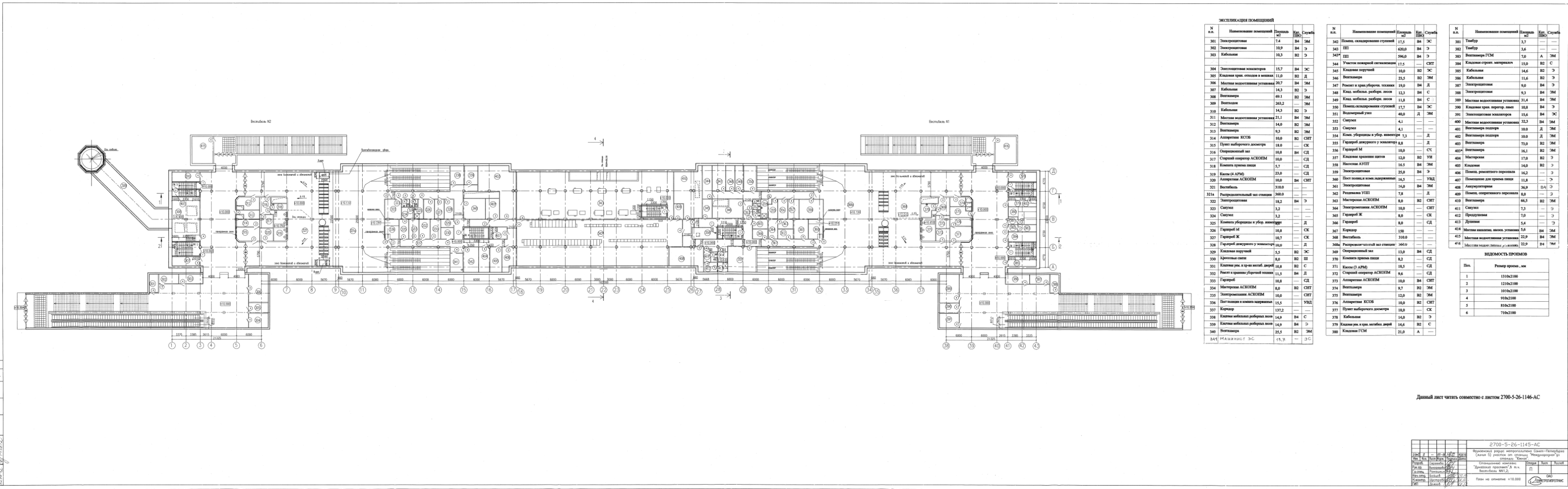
Из КД.
зы. Все травтолаторы(и на пр. Славы) заведомо TyssenKrupp
зы. Все травтолаторы(и на пр. Славы) заведомо TyssenKrupp
"Ключик на 60 дайте, пожалуйста".
- Nomernoy
- Профессионал

- Сообщения: 5204
- Зарегистрирован: 10 окт 2005, 16:25
- Станция метро: Театральная
- Откуда: Санкт-Петербург
- shtchelkov
- Сообщения: 60
- Зарегистрирован: 29 дек 2012, 13:25
- Станция метро: Достоевская
Re: Дунайская (Дунайский проспект)
Nomernoy писал(а):Жаль, что под Бухарестской улицей не сделают переходы.
Почему? Вроде как планировалось, нет? Да и на чертежах выше вроде как 4 входа
- Nomernoy
- Профессионал

- Сообщения: 5204
- Зарегистрирован: 10 окт 2005, 16:25
- Станция метро: Театральная
- Откуда: Санкт-Петербург
Re: Дунайская (Дунайский проспект)
shtchelkov
Все четыре выхода, судя по чертежам, будут западнее Бухарестской улицы. В общей теме по Фрунзенскому радиусу karhu выложил план станций с указанием границ проседания. Там видно и расположение Дунайской.
Все четыре выхода, судя по чертежам, будут западнее Бухарестской улицы. В общей теме по Фрунзенскому радиусу karhu выложил план станций с указанием границ проседания. Там видно и расположение Дунайской.
